
|
Оглавление → Линкоры → тип "Nassau"
|
||||||||||||||||||||||||||||||||||||||||||||||||||||||||||||||||||||||||||||||||||||||||||||||||||||||||||||||||||||||||||||||||||||||||||||||||||||||||||||||||||||||||||||||||||||||||||||||||||||||||||||||||||||||||||||||||||||||||||||||||||||||||||||||||||||||||||||||||||||||||||||||||||||||||||||||||||||||||||||||||||||||||||||||||||||||||||||||||||||||||||||||||||||||||||||||||||||||||||||||||||||||||||||||||||||||||||||||||||||||||||||||||||||||||||||||||||||||||||||||||||||||||||||||||||||||||||||||||||||||||||||||||||||||||||||||||||||||||||||||||||||||||||||||||||||||||||||||||||||||||||||||||||||||||||||||||||||||||||||||||||||||||||||||||||||||||||
Линейные корабли (Linienschiffe, Grosslinienschiffe) типа
Германия, 1909-1910 г. 4 ед. (проект 1905-1906 гг.)
* Nassau * Westfalen * Rheinland * Posen *
ОСНОВНЫЕ ДАННЫЕ
ТТХ
БРОНИРОВАНИЕ
ВООРУЖЕНИЕ
Другое важное нововведение, впервые в мировой практике, - металлические гильзы вместо применявшихся ранее шелковых картузов: несколько сот тонн лишнего веса в данном случае с лихвой компенсировались уменьшением риска взлететь на воздух от одной попавшей в погреб боезапаса искры. Все корабли этого типа входили в состав Флота Открытого моря. После заключения перемирия корабли типа "Nassau" остались на родине, не ушли в Скапа-Флоу. "Nassau" по репарациям передали Японии, разобран в 1921 г. одной из английских фирм. "Westfalen" 1.09.1918 выведен из состава флота и использовался в качестве учебного артиллерийского корабля. После капитуляции был интернирован и передан Англии, разобран в 1924 г. "Rheinland" 11.04.1918 г. во время операции против Аландских островов (Балтийское море) в тумане наскочил на камни. Его удалось снять и отбуксировать в Киль. Из-за сильных повреждений восстановление было признано нецелесообразным. 9.07.1918 г. выведен из состава флота и разобран в 1921 г. "Posen" после капитуляции Германии передан Великобритании и разобран в 1922 г.
В журнале "Морской сборник" 1906 г. № 6 говорилось, что: "Германские эскадренные броненосцы Ersatz Bayern и Ersatz Sachsen, по данным английского журнала "Engineer", будут иметь водоизмещение по 17710 т; скорость хода 19,5 уз.; главное артиллерийское вооружение их будет состоять из четырнадцати 280-мм пушек в 50 калибров длиной. Относительно обоих броненосцев "Ersatz Bayern" и "Ersatz Sachsen", в обычной синей книге, представленной недавно английскому парламенту, даны следующие сведения: "водоизмещение 17710 т; артиллерийское вооружение восемь 280-мм и двенадцать 190-мм пушек". Исходя из привычной для Германии экономии средств на постройку новых линкоров (последних с главной артиллерией калибра 280-мм), проектное (нормальное) водоизмещение ограничили величиной 18000-19000 т. Однако и это умеренное водоизмещение проектировщики снова использовали наилучшим образом. Отказавшись от крайностей, которые за границей были выбраны либо в пользу одних, либо других боевых качеств, создали оптимальный проект довольно гармоничного корабля. Наружные обводы корпуса обеспечивали хорошую мореходность, скорость хода поддерживалась в пределах средних значений своего времени, прикрытая бронированными башнями, главная артиллерия имела несколько уменьшенный, но достаточно эффективный и обладавший большей скорострельностью калибр 280-мм. Окончательно проект линкора по своей конструкции представлял собой высокобортный гладкопалубный башенно-казематный броненосный корабль с шестью бронированными вращающимися башнями артиллерии главного калибра (по одной в оконечностях корабля, и по две побортно), двенадцатью казематами в средней части корабля, лёгкой артиллерией в обеих надстройках, носовой и кормовой оконечностях, двумя бронированными боевыми рубками, непрерывным главным броневым поясом от кормовой поперечной броневой переборки до форштевня, бронированной цитаделью и казематами и броневой палубой выше и ниже ватерлинии. Проектное водоизмещение "Nassau" превышало "Dreadnought" приблизительно на 700 т, весовая часть энергетической установки и вооружения была меньше, а весовая часть бронирования на 1800 т больше. Запас водоизмещения запланировали небольшой, что было характерно для проектирования кораблей того времени во всех странах. Естественно, он оказался недостаточным для компенсации возникающего перерасхода веса при постройке, поэтому корабль в эксплуатации имел осадку выше проектной. Кормовую оконечность защищала только броневая палуба, расположенная ниже ватерлинии. Форма корпуса новых кораблей отличалась от корпуса линкора "Dreadnought" несколько меньшей длиной и более широким миделем, а также отсутствием полубака. Подъём днища в носовой части корабля был менее крутой, а у форштевня отсутствовал характерный таранный шпирон, что свидетельствовало о полном отказе от архаичной тактики таранного удара в бою. Согласно Грёнеру, для всех четырёх линкоров типа "Nassau" проектное (нормальное) водоизмещение при осадке по конструктивную ватерлинию (КВЛ) включало вес боезапаса, экипажа, загрузку от 25 до 50% топлива (950 т угля), провианта и другого специального оборудования, что составляло, согласно Эверсу, 18870 т при средней осадке 8,06 м; по Брейеру 18569т по Конвэю, соответственно, 18570 т и 8,08 м, по Грёнеру - 18873 т, то есть, по разным данным, на 449-753 т больше, чем у "Dreadnought". Увеличение осадки на 1 см соответствовало увеличению водоизмещения на 28,92 т.
Согласно Конвэю, длина корабля между перпендикулярами составляла 137,7 м; согласно Грёнеру, по проекту по КВЛ 145,6 м и наибольшая 146,1 м, против, соответственно, 149,4 м, 158,5 м и 160,74 м или на 11,7 м, 12,9 м 14.64 м короче, чем у "Dreadnought". Корпус новых линкоров выполнили гладкопалубным и сравнительно широким. Отношение L/B составило 5,41 против 5,65 у Deutschland. Конструктор этих кораблей главный строитель имперского флота тайный советник Бюркнер, выполняя требование сильно увеличить водоизмещение корабля при сохранении прежней осадки и учитывая необходимость действенной подводной защиты против торпед и мин, был вынужден значительно увеличить ширину корабля, поскольку конструкция противоминной защиты (пространство ниже главной броневой палубы между противоминной переборкой и наружной обшивкой), чтобы быть достаточно эффективной, требовала определенного пространства и глубины внутри корпуса. Помимо прочего, это также значительно повышало остойчивость. Согласно Конвэю и Грёнеру, ширина корабля на мидель-шпангоуте (52-й шп.) составляла 26.9 м (без учёта противоторпедных сетей); согласно Эверсу, отношение L/B=5,41 (где В длина по КВЛ), против, соответственно, 25,03 м и 6,33 у "Dreadnought" и 22,2 м и 5,65 у линкоров типа Deutschland, то есть на 1,9 м и 4,7 м шире.
Согласно Эверсу, высота надводного борта линкоров типа "Nassau" на миделе при нормальном водоизмещении составляла 5,18м (на "Dreadnought" 5,60 м). Согласно Конвэю, высота надводного борта составляла в носовой оконечности 6,71 м, на миделе 5,66 м и в кормовой части 5,94 м (против 8,54 в носовой оконечности, 5,03 м на миделе и 5,49 м в кормовой части "Dreadnought"). Согласно Эверсу: "Особые военные условия морских сражений в районе Северного моря создали для германского флота особый тип кораблей, во многих отношениях отклоняющийся от английских. Плохая видимость в течение известного времени года делает бои на большой дистанции маловероятными. Поэтому главный калибр был снижен, а средняя артиллерия оставлена. Немного лет спустя это решение пришлось принять и Англии, чтобы противостоять эсминцам. Экономия в весе машинных установок и тяжёлой артиллерии дала возможность увеличить толщину брони, равно как и величину бронированной площади, так что она оказалась много больше, чем у английских кораблей. Эти отличительные качества также отвечают бою на средних дистанциях".
Средства защиты включали бронирование и другие способы предотвращения гибели корабля от потери непотопляемости или остойчивости. По сравнению с германскими додредноутами бронирование ещё более усилили. Броневой пояс в средней части борта "Nassau" достигал толщины 270 мм (у остальных 290 мм) вместо 225 мм и, соответственно, 240 мм у линкоров типа Deutschland. (Dreadnought имел толщину броневого пояса по КВЛ 279 мм, выше 203 мм. Бронирование цитадели между броневым поясом и верхней палубой отсутствовало, поскольку там не имелось артиллерии среднего калибра). В средней части корпуса броневой пояс был значительно шире, чем у его предшественников, так что он перекрывал батарейную палубу. Переход от лежащей выше КВЛ части броневой палубы в середине корабля до лежащих ниже КВЛ частей броневой палубы в оконечностях осуществили не через наклонную, так называемую гласиспалубу, а за счёт установки в местах перехода поперечных вертикальных переборок. Противоторпедные продольные переборки проходили вдоль всей длины цитадели. (На "Dreadnought" противоторпедные переборки в виде коротких экранов расположили только на длине погребов боеприпасов.) Эффективность защиты этих переборок из 30-мм судостроительной стали была недостаточной. Лишь на линкорах типа Kaiser поставили 40-мм переборки из броневой стали.
В качестве критерия бортовой защиты часто используют угол крена, при котором верхняя кромка броневого пояса уходит под воду или нижняя выходит из воды. При крене 7° нижняя кромка броневого пояса выходила из воды, при 25° верхняя кромка броневого пояса уходила под воду.
Котлы отапливались углем. Консервативность немцев в сохранении этого вида топлива легко объясняется тем, что немцы считали его важным дополнением к броневой защите. Правда, при этом требовалось делать вырезы в переборках для удобства доступа в угольные ямы, что явно не улучшало водонепроницаемость отсеков. Кроме того, довольно существенно увеличивался экипаж корабля.
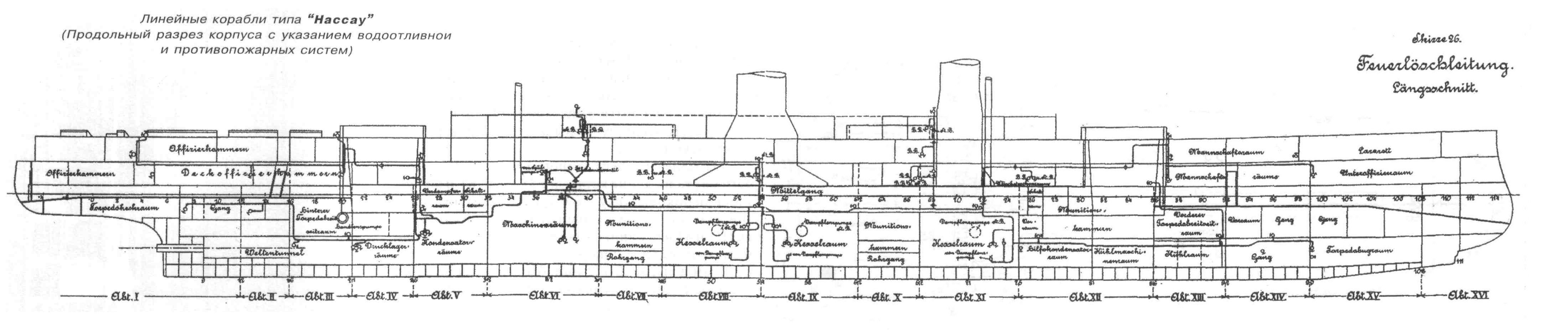
Корабли оборудовали системами управления и средствами сигнализации, электроосвещения, кренования, осушения и затопления трюмов и отсеков, затопления погребов боезапаса, противопожарной, парового отопления и вентиляции помещений.
По высоте корпус корабля разделили шестью палубами, часть из которых проходила через весь корабль, и двумя палубными платформами. Сверху вниз располагались: ярусы мостиков, палуба надстроек (спардек), верхняя, батарейная, броневая (она же промежуточная, как продолжение броневой в той же плоскости в местах отсутствия бронирования) палубы; в части корпуса ниже броневой палубы верхняя и нижняя палубные платформы (твиндек) и настил внутреннего (второго) дна, а в носовой и кормовой оконечностях настилом трюма.
Расположенную между броневой и батарейной палубами обшивку корпуса и бортовую броню установили в шпунт (канавки) глубиной 60 мм и соединили со штевнем несколькими рядами заклёпочных и болтовых соединений. Ниже броневой палубы рёбра жёсткости штевня в трёх местах соединили с листами настилов. Ещё ниже от 109 до 111-го шп. разместили отливку из мягкой судостроительной стали Сименс-Мартена, служащую для крепления передней части трубы и водонепроницаемой крышки ТА и соединявшуюся листами набора со штевнем и наружной обшивкой. На каждом борту в плоскости бронированных палуб на протяжении от 107-го шп. до форштевня установили вертлюги из отливок мартеновской стали, служившие для надёжного соединения при помощи заклёпок бронированных палуб, бортовой брони и рёбер штевня. В этих вертлюгах имелись шпунты глубиной 30 мм для соединения с расположенными за бронёй листами бортовой обшивки. Для подкрепления носовой оконечности установили оковки и рёбра жесткости из более толстых листов стали и двойных уголков. Для образования форштевня в районе от батарейной до верхней палубы литой штевень продолжили утолщёнными листами стали шириной один метр, наложенными на бортовую обшивку и скреплёнными с ней двойным рядом заклёпок. С боковых сторон форштевень соединялся с носовыми 80-мм плитами главного броневого пояса, которые на одинарной бортовой обшивке и деревянной прокладке установили заподлицо с его наружной поверхностью.
Верхняя часть ахтерштевня от броневой палубы до клюза кормового якоря представляла собой кормовой шпангоут (старнтимберс), соединявшийся с наружной обшивкой при помощи стыковочного листа и соединения с перекрытием (внахлёст). Между 3 и 4-м шп. расположили отлитый из мягкой судостроительной стали Сименс-Мартена кронштейн среднего гребного вала с двумя стойками. Стойки кронштейна проходили через наружную обшивку и были приклёпаны к стрингеру № 1а и поперечным переборкам на 3 и 4-м шп. Ступицу кронштейна снизу сделали плоской, образовав тем самым опорную поверхность для кормы при постановке корабля в док. Между кронштейном среднего гребного вала и старнпостом находилась задняя дейдвудная труба, привинченная к кронштейну и штевню в трёх местах. Киль или нулевой стрингер длиной 123 м проходил от 6 1/2 до 109-го шп. и соединял форштевень с ахтерштевнем, обеспечивая продольную жёсткость и водонепроницаемость по всей длине днища корпуса. Конструктивно киль состоял из одного вертикального сплошного (неразрезного) 15-мм стального листа, двух верхних и двух нижних сплошных (непрерывно проходящих) стальных уголков, служащих для крепления нижних листов горизонтальной части киля. Вертикальный стальной лист на большей своей части имел высоту около 1,2 м и от 16 до 108-го шп. и не имел вырезов для облегчения веса. Горизонтальная часть киля состояла из двух, лежащих под средним килевым листом друг на друге и склёпанных с помощью двух нижних уголков стальных поясов обшивки; внутренний пояс от 8 до 104 1/2-го шп. шириной 1,5 м, нижний — 1,2 м. От 104 1/2-го шп. в нос горизонтальная часть киля состояла из одного листа. Соединение деталей киля при помощи заклёпок от 16 до 108-го шп. обеспечивало его водонепроницаемость, а в районе от 54 до 62-го шп. и от 67 до 75-го шп. его нефтенепроницаемость. Помимо вертикального киля продольную прочность корпуса обеспечивали продольные связи - стрингеры. Начиная от киля, на каждой стороне днища и борта корпуса проходило по девять стрингеров. Стрингеры собирали из сплошных 9-мм полос и отдельных уголков. Они проходили вдоль днища и борта корпуса на разную длину, имели высоту около 1,2 ми по длине корабля разное расстояние (2,1-2,125 м) друг от друга — максимальное 2,15 м на мидель-шпангоуте (52-й шп.), что соответствовало изменению формы корпуса. Водонепроницаемыми стрингеры были только на отдельных участках. Стрингеры вне района водонепроницаемости через каждые две шпации имели большие круглые вырезы для облегчения веса, а также ряд отверстий диаметром 80 мм для стока воды. В районе от 21 до 86-го шп. противоторпедная переборка являлась продолжением стрингера № 4. Ниже броневой палубы набор корпуса включал 121 шпангоут. Шпангоуты собирали из установленных между стрингерами 8-мм стальных листов, соединённых отдельными уголками. Полностью водонепроницаемыми во всех частях были -4, -1, 12, 16, 21, 26, 32, 37, 41, 46, 50, 54, 58, 62, 67, 71, 75, 81, 86, 92, 99, 108 и 111 -и шп. Остальные для облегчения веса имели большие круглые вырезы. Выше броневой палубы шпангоуты продолжались в тех же плоскостях, что и ниже. В цитадели и казематах за главным броневым поясом установили промежуточные облегчённые неподкреплённые шпангоуты с размером шпации 600 мм, имеющие большие вырезы. Верхние концы шпангоутов жёстко крепили к настилу батарейной, либо верхней палубы бракетами, бракетными флорами и кницами. Ниже броневой палубы пересекающиеся шпангоуты и стрингеры образовали систему набора корпуса, которую снизу покрыли стальными листами наружной обшивки, обеспечивая водонепроницаемость корпуса. До стрингера № 4 по обе стороны от киля проходила наружная обшивка днища, выше — наружная обшивка борта. Ниже броневой палубы от 12 до 105-го шп. наружную обшивку изготовили по системе прилегающих и перекрывающих друг друга поясов. 16-мм листы обшивки располагали рядами или поясами параллельно килевым листам так, что наружный 17-мм пояс обшивки своими краями перекрывал оба смежных внутренних пояса. В оконечностях корпуса от киля до броневой палубы позади 12-го и впереди 105-го шп. и выше броневой палубы обшивку настилали одиночными 15-мм листами только как прилегающие пояса, образуя гладкую поверхность выше бортовой брони. Покрытием 8-мм стальными листами верхних кромок шпангоутов и стрингеров образовали настил двойного (внутреннего) дна и двойного (внутреннего) борта. Двойное дно высотой около 1.2 м проходило от 6-го до 108-го шп. по обе стороны киля на длине 123,6 м или 85% длины корабля по КВЛ (согласно Грёнеру 88%), против, соответственно, 82,8 м или 68,5% у линкоров типа Kaiser Friedrich III и 91,2 м или 72% у линкоров типа Deutschland. Двойное дно после стрингера № 4 переходило в двойной борт, заканчивающийся броневым шельфом — мощным сплошным уголком, на который торцом опирался главный броневой пояс. Листами конструкции системы набора, часть из которых были водо- и нефтенепроницаемы, двойное дно и двойной борт делились на большое число герметичных отсеков и цистерн. Отсеки и цистерны в двойном дне располагались побортно от киля (нулевой стрингер) на длине корпуса с 16-го по 108-й шп: с 16-го до 21-го шп. в районе стрингера № 2, с 21-го до 86-го шп. в районе стрингера № 4, с 86-го до 108-го шп. в районе нижней палубной платформы. В двойном дне имелось 72 цистерны, из которых цистерны между 32 и 37-м шп. Предназначались для котельной питательной воды и между 37 и 41-м шп. для мытьевой воды. Цистерны побортно между средним килевым листом и ближайшим водонепроницаемым стрингером обозначили как двойное дно № 1, между этим стрингером и следующим как двойное дно № 2. В районе V-го и VI-го основных отсеков между 26 и 41-м шп. цистерны от стрингера № 2а до стрингера № 4 обозначили как двойное дно № 3. Двойной борт проходил с 12-го по 99-й шп. на длине 105,6 м или 73% длины корабля по КВЛ и располагался от 12-го до 86-го шп. между стрингером № 4 и броневой палубой, от 86-го до 99-го шп. между нижней палубной платформой и броневой палубой. В этом районе водонепроницаемыми были те же шпангоуты, что и у двойного дна, кроме того, стрингер № 4 между 26 и 86-м шп. Тем самым были образованы по 31 отсеку и цистерны по ПрБ и ЛБ. Отсеки и цистерны побортно от 26-го до 86-го шп. обозначили как двойной борт № 1 и № 2, до и после района этих шпангоутов — двойной борт № 1. Для поддержки среднего гребного вала между 3 и 4-м шп. установили кронштейн с двумя стойками, отлитый из мягкой мартеновской стали. Внутри втулки кронштейна сделали уступы для установки бронзовой мортиры гребного вала. Между кронштейном гребного вала и старнпостом установили заднюю (кормовую) дейдвудную трубу, а между ахтерштевнем и переборкой на 9-м шп. переднюю. В помещения от 6 1/2 и до 9-го шп., где размещались передняя дейдвудная труба, кормовой ТА и дифферентовочная цистерна, имелся доступ только через горловину лаза. Для поддержки обоих боковых гребных валов также имелись свои дейдвудные трубы. Пояс наружной обшивки, проходящий в районе между 7 1/2-м и 12-м шп., постепенно принимал форму подводной части корпуса, был водонепроницаемым, и доступ туда был возможен через горловину лаза между 9 и 10-м шп. Дейдвуд отлили полым, воспринимающим нагрузку с кормы, и в нём предусмотрели уступы для (упора) восприятия давления бронзовых мортир гребного вала. Другой конец мортиры гребного вала зафиксировали в насадке (кронштейне) на 12-м шп. Принимая во внимание большие поперечные нагрузки корпуса корабля (вследствие большой ширины и далеко расположенных от ДП высоколежащих грузов) для докования на "Nassau" было установлено три доковых киля, вместо одного среднего киля, имеющегося на всех кораблях. Дополнительные кили стояли по бортам ниже противоторпедных переборок (IV-й стрингер). Также было сделано и на броненосном крейсере Blücher. Это нововведение, несомненно, было обосновано, но вызвало определенные неудобства при доковании, поскольку эти три прямые линии должны были находиться на одной плоскости, что на практике было едва ли выполнимо как при постройке корабля, так и при постановке его в док на клетки. Боковые (скуловые) успокоительные кили первоначально установлены не были. Но моряки, возможно, не ожидали, что такой большой корабль будет так крениться. Тем большей была неожиданность во время первых испытаний при плохой погоде, у людей, бывших на берегу, даже возникли опасения, что корабль находится в опасности. Остойчивость и мореходность были улучшены за счет установки больших скуловых килей. Позднее на обеих сторонах наружной поверхности борта на длине корпуса с 37-го по 64-й шп. установили боковые (скуловые) успокоительные кили длиной 33,6 м (61,2 м у линкоров типа Kaiser Friedrich III и 44,4 м у линкоров типа Deutschland). Кили имели треугольное поперечное сечение с основанием 200 мм и высотой 570 мм и были склёпаны из 10-мм полос судостроительной стали. С помощью согнутых уголков их приклепали к наружной обшивке борта между местом прохождения стрингеров №№ 5 и 6. Внутреннее пространство между расположенными под углом стальными полосами заполнили деревом на морском клее, образуя таким образом монолитное ребро. Водонепроницаемые поперечные переборки проходили: ниже броневой палубы 8-мм поперечные переборки на -5, -4, -1, 7-м шп. и (за исключением угольных ям) на 12, 16, 21, 26, 32, 41, 46, 54, 62, 67, 75, 81, 86, 92, 99, 108 и 111-м шп.; между броневой (промежуточной вне зоны бронирования) палубой до и позади цитадели на -5, 7, 12, 16, 21, 86, 92, 99, 108 и 111-м шп. (21 и 86-й шп. были бронированными); внутри цитадели на скосах броневой палубы на 21, 32,41, 46. 54, 62. 67, 75, 59 и 86-м шп.; на промежуточной палубе на -5, 5, 13, 21, 32, 41, 46 (по ЛБ и ПрБ), 54, 62 (по ЛБ и ПрБ), 64, 67 (по ЛБ и ПрБ), 68 1/4 (по ДП). 75 (по ЛБ и ПрБ), 78 (по ДП), 79 (по ЛБ и ПрБ), 86, 92. 99 и 111-м шп.; на батарейной палубе на 34, 43, 55, 65 и 75-м шп. и поперечные переборки казематов.
В числе продольных водонепроницаемых переборок на каждом борту корпуса установили по одной 8-мм коффердамной переборке, идущей вдоль двойного борта в месте прохождения стрингера № 5 по высоте от настила внутреннего дна до скоса броневой палубы с 32-го по 67-й шп. и образующей между ней и двойным бортом коффердамы (бортовые проходы или коридоры) длиной 42 м. Максимальное отстояние коффердамных переборок от борта на миделе составляло 2,56 м при ширине коффердама 1,42 м. Коффердамы служили камерой расширения при взрыве пробивших броневой пояс снарядов и торпед. Эти переборки должны были дополнять назначение бортовой брони по защите внутренних частей корабля от давления газов и действия осколков брони и снарядов, хотя их 8-мм стенки вряд ли могли служить в качестве противоосколочных переборок. 30-мм противоторпедные переборки из обычной судостроительной стали длиной 78 м, являясь продолжением стрингера № 4 до броневой палубы, проходили на каждом борту корпуса с 21-го по 86-й шп. Максимальное отстояние противоторпедных переборок от борта на миделе составляло 4,68 м при ширине защитного бункера 2,12 м. На каждом борту корпуса на протяжении всех КО с 46-го по 62-й шп. и с 67-го по 75-й шп. параллельно и на расстоянии 6,7 м от ДП установили переборки продольных расходных угольных ям, проходящие от настила внутреннего дна до броневой палубы. Водонепроницаемыми поперечными переборками на 46-м и 62-м шп. расходные угольные ямы разделили на три части. По обоим бортам корпуса между броневой и батарейной палубами с 21 -го по 79-й шп. протянулись продольные переборки, расположенные на горизонтальной части броневой палубы, отстоящие на 0,5-1 м от её скосов и образующие внутренний борт верхних угольных ям. Пересечение продольных и поперечных водонепроницаемых переборок образовало ниже броневой палубы внутри каждого из основных отсеков приблизительно одинаковое количество отдельных водонепроницаемых помещений различного объема. На "Nassau" и "Rheinland" их имелось 319, на "Posen" 314. Под броневой палубой с 42-го по 75 3/4-й шп. расположили сплошной прямой центральный коридор длиной 40,5 м, против 44,4 м на Deutschland, высотой 3 м и шириной 1,45 м, проходящий без перерыва над всеми КО и через все водонепроницаемые поперечные переборки, в которых для него проделали проходы. На 75 3/4-й шп. из него имелся вход вверх в коммуникационную трубу передней боевой рубки. Из передней боевой рубки через эту трубу в центральный коридор свободно и легкодоступно проходили система рулевого управления и его указатели, механический телеграф, переговорные трубы, электрические и телефонные кабели, трубопроводы системы воздуха высокого давления (ВВД), противопожарной системы и т.д. В районе с 63-го по 66-й шп. коридор расширялся до 3 м и, начиная с 73-го по 75-й шп., его стенки уходили наискось, расширяясь до 3 м на водонепроницаемой поперечной переборке на 75-й шп. В расширенной части центрального коридора с 63-го по 66-й шп. площадью 10,8 кв.м разместили по ПрБ пункт управления торпедного и артиллерийского оружия, телефонный коммутатор, по ЛБ боевой штурманский пост и центральный пост живучести. В расширенной части, начиная с 73-го шп., расположили центральный командный пункт. Если на додредноутах центральный коридор соединял обе боевые рубки через их коммуникационные трубы, поскольку на них средняя паровая машина стояла позади бортовых, позволяя провести центральный коридор до задней боевой рубки, то на линкорах типа Nassau, благодаря большой ширине корпуса и относительно небольшим размерам главных паровых машин, их удалось расположить рядом друг с другом в одном МО. он заканчивался у водонепроницаемой поперечной переборки между VI и VII-м основными отсеками на 42-м шп. Толщина стальных стенок центрального коридора составляла 6 мм, настила пола 8 мм. В местах прохода шахт дымовых труб на его обшивку снаружи нанесли слой изоляции для предотвращения нагрева газами дымовых труб. Вентиляция (удаление нагретого воздуха) осуществлялась через центральную трубу фок-мачты.
На 2,5 м выше настила внутреннего дна и на 4,36 м ниже КВЛ расположили водонепроницаемую нижнюю палубную платформу из 8-мм судостроительной стали, проходящую с перерывами через I - IV, VII, X, XII - XVI-й основные отсеки.
Между верхней палубной платформой и батарейной палубами в средней части корпуса от 20-го до 87-го шп. на 0,86 м выше КВЛ, а в носовой с 86-го шп. на 1 м и кормовой части до 21-го шп. на 300 мм ниже КВЛ проходила броневая палуба. Продолжением надводной части броневой палубы в той же горизонтальной плоскости от 87-го шп. до форштевня и от 20-го шп. до бронированной переборки на 5-м шп. проходила плоская промежуточная (средняя жилая) палуба из 8-мм судостроительной стали.
Верхнюю палубу над казематом настелили из более толстых стальных плит, расположив на бронированных поперечных переборках вокруг барбетов бортовых башен, так как она представляла собой основание для всей надстройки корабля. На верхней палубе в районе от 74 3/4 до 77 1/2-го шп. на длине 3,9 м установили переднюю боевую рубку. На 2,15 м выше верхней палубы расположили с 29-го по 40-й шп. заднюю, с 49 1/2-го по 60-й шп. среднюю и с 64-го по 78-й шп. переднюю 8-мм стальную надстроечную (шлюпочную) палубу или спардек. Надстройки соединили между собой переходными мостиками. Поверх передней надстройки в районе от 64 до 78-го шп. находился командный мостик, охватывающий своей передней частью боевую рубку. На передней части командного мостика находился пост управления кораблём в мирное время, на задней части — штурманская рубка и помещение командира корабля. Все линкоры типа "Nassau" получили то, чего до них никогда не было — специальный адмиральский мостик, расположенный в районе от 68 до 75-го шп. на 7,55 м выше верхней палубы и на 3,5 м выше командного мостика. Адмиральский мостик имел по бокам свободные крылья, выступающие на 9 м от ДП и откидывающиеся назад к передней дымовой трубе. Поверх адмиральского мостика, с обеих сторон и почти вплотную к передней дымовой трубе установили два расположенных друг над другом поста сигнальных прожекторов. На задней надстройке в районе от 29 1/2 до 32-го шп. на основании высотой 750 мм расположили заднюю боевую рубку. Побортно от задней шахты вытяжной вентиляции МО, установленной между 37 и 39-м шп., на платформах (помостах) разместили посты сигнальных прожекторов, поверх этой же шахты на 2,4 м выше платформ установили задний мостик для прожекторов, а ближе к носу, подальше от стальных частей надстройки, пост главного компаса. На открытые части батарейной и верхней палуб, за исключением мест установки заслонок портов 150-мм орудий, настелили деревянный настил из тикового дерева толщиной 60 мм, в то время как для покрытия остальных палуб был предназначен линолеум. Настил (пол) гальюнов, помывочных помещений, за исключением отдельных ванных комнат для командного состава, покрыли линолеумом толщиной 3,6 мм, камбузы, хлебопекарни и помещения для хранения шлака — керамической плиткой. В помещениях ТА, вспомогательных механизмов, МО и всех КО, поверхности настила, а также ступени трапов, ведущих в МО и КО, сделали из листового металла с насечками. Доступ в водонепроницаемые отсеки, помещения, трюмы и цистерны осуществлялся через обеспечивающие водонепроницаемость двери, люки, горловины лазов с крышками. Устройство этих кораблей представляло собой гармоничное сочетание необходимого количества артиллерии, мощности машинной установки и условий обитания экипажа, рациональное распределение массы, в необходимых пределах ограниченные размеры надстроек и довольно лёгкие стальные трубчатые мачты с деревянными стеньгами. Несмотря на отсутствие полубака, надводный борт в носовой части обеспечивал достаточно хорошую мореходность в условиях Северного моря, а 150-мм орудиям — достаточную высоту ведения огня над уровнем моря (4,2 м над КВЛ), такую же как и у линкоров типа Deutschland (4,23 м). Немецкие конструкторы продолжали максимально использовать разделение трюмов корабля водонепроницаемыми переборками на множество отдельных отсеков и цистерн, наряду с довольно совершенной для того времени искусственной вентиляцией внутренних помещений. Подводную часть корпуса ниже броневой палубы по высоте разделили нижней и верхней палубными платформами на три части, проходившими с частичными перерывами от ахтерштевня до форштевня. Помещение между настилом внутреннего дна и нижней палубной платформой обозначили трюмом, помещение между настилом нижней и верхней палубными платформами — нижней палубной платформой или твиндеком, а верхней палубной платформой и броневой палубой — верхней палубной платформой. Промежуточная палуба представляла собой в основном жилую палубу. В кормовой оконечности разместили каюты офицеров, инженер-механиков, гардемарин, в средней части — кубрики унтер-офицеров, помещения различных мастерских, в носовой оконечности — кубрики унтер-офицеров и матросов. В районе VI-го, VIII-го, IX-го и Х1-го основных отсеков ближе к ДП установили воздуходувки для подачи воздуха в МО и КО и вырезы для прохода кожухов дымовых труб, с 41-го по 46-й шп. и 62-го по 67-й шп. основания бортовых башен 280-мм орудий с поворотным устройством и механизмом подачи боеприпасов. На батарейной палубе от ахтерштевня до -5-го шп. оборудовали кормовой балкон, от -5-го до 1-го шп. находилась каюта командира корабля с четырьмя 88-мм орудиями, затем до каземата — каюты офицеров и различные служебные помещения, с 10-го по 18-й шп. кают-компания. Внутри каземата, разделённого продольными и поперечными противоосколочными переборками и четырьмя основаниями бортовых башен на 12 отдельных помещений, установили 150-мм орудия. Ближе к ДП между продольными противоосколочными переборками находились кубрики для команды, с 48-го по 51-й шп. - радиорубка и вырезы для прохода кожухов дымовых труб. Вне каземата в носовой оконечности разместили помещения различных мастерских, затем кубрики унтер-офицеров и матросов и, наконец, стационарный лазарет. С 93-го по 95-й шп. по ЛБ имелся люк броневой шахты для погрузки торпед. На кормовой части верхней палубы разместили платформу главного компаса, верхние световые люки жилых помещений и палуб, шпиль кормового якоря и кнехты, с 29-го по 40-й шп. расположили заднюю, с 49 1/2-го по 60-й шп. среднюю и с 64-го по 78-й шп. переднюю надстройки, с 41-го по 46-й шп. и 62-го по 67-й шп. — барбеты бортовых башен 280-мм орудий, в носовой оконечности — шпили носовых якорей, кнехты и три якорных клюза. Надстройки соединили между собой переходными мостиками. В задней надстройке разместили кубрик для матросов и различные служебные помещения, поверх её — заднюю боевую рубку, шахты вентиляции и подачи воздуха и четыре 88-мм орудия. С 43-го по 64-й шп. установили катера и спасательные шлюпки, по ПрБ и ЛБ на 52 1/2-м шп. — краны спуска-подъёма спасательных средств и у борта на 54-м -60-м шп. — бронированные дальномерные посты. Через среднюю надстройку проходил кожух задней дымовой трубы, а перед ней разместили камбуз. В передней надстройке 64-го по 67-й шп. разместили хлебопекарню, затем проходил кожух передней дымовой трубы и вокруг основания передней боевой рубки — помещение для хранения дождевого тента.
Внутреннее пространство цельноклепанного корпуса, наверху замыкаемое броневой палубой, включающее обе палубные платформы, от настила внутреннего дна и двойного борта до броневой палубы делилось 15-ю водонепроницаемыми поперечными переборками на XVI основных водонепроницаемых отсеков. Все водонепроницаемые переборки доходили до броневой палубы, а часть из них до батарейной или верхней палуб. На всех линкорах основные отсеки были одинаковыми. По принятому в германском судостроении порядку, нумерация отсеков (а также переборок) шла от кормы к носу. I-й основной отсек ниже броневой палубы длиной 22,3 м располагался от ахтерштевня по 12-й шп. В нем по ДП проходил туннель среднего гребного вала и кладовые запасных частей различных машин и механизмов. На нижней палубной платформе с 7-го по 12-й шп. оборудовали кормовую дифферентовочную цистерну. На верхней палубной платформе по ДП имелся проход в помещение кормового торпедного аппарата (ТА), из которого через двери имелся доступ в побортно расположенные помещения запасного ручного рулевого управления и в расположенные за ними кладовые обмундирования. К корме за 7-го шп. по ДП в помещении в районе от -1-го по -4-й шп. установили кормовой подводный ТА с запасными торпедами. Конец трубы ТА снаружи закрывался водонепроницаемой крышкой. С 7-го по 9-й шп. побортно находились румпельные отделения ручного управления обеими рулями, для чего в каждом установили по два ручных штурвала и различные кладовые. II-й основной отсек ниже броневой палубы длиной 4,8 м располагался с 12-го по 16-йшп. Через него проходили обе палубные платформы. Трюм отсека разделили четырьмя продольными переборками. В нём по ДП проходила передняя часть туннеля среднего гребного вала, по ЛБ разместили цистерну спирта, по ПрБ помещение кладовых запасных частей машин и механизмов. Побортно от цистерны спирта и помещений кладовых проходили туннели боковых гребных валов. На нижней палубной платформе по ПрБ находилось помещение боевых головных частей торпед и практических отделений торпед, по ЛБ, кладовая красок, а также помещение кормового шкафа с аккумуляторными батареями аварийного освещения. На верхней палубной платформе по правую и левую сторону от прохода находились помещения основных и резервных рулевых машинок, с расположенными ближе к бортам кладовыми запасных частей. Переднюю часть прохода занимало помещение, где производили переключение рулевого управления с основных и резервных рулевых машин на резервный ручной привод. В двойном борту № 1 по ПрБ и ЛБ имелось по одной цистерне. III-й основной отсек ниже броневой палубы длиной 6,0 м занимал пространство корпуса с 16-го по 21-й шп. Трюм отсека разделили двумя продольными переборками, расположенными над местом прохождения стрингеров № 2, на три туннеля гребных валов. В более широком туннеле среднего гребного вала с 16-го по 20-й шп. по ПрБ оборудовали четыре выгородки под цистерны смазочных масел: машинного, для смазки цилиндров, турбинного масла, а по ЛБ разместили кладовые запасных частей. Оба бортовых туннеля гребных валов без перерыва проходили от переборки на 12-м шп. до 21-го шп. Помещение на нижней палубной платформе по высоте до броневой палубы, ограниченное продольными переборками и шпангоутами, разборной фигурной выгородкой разделили на два отсека задних бортовых ТА ПрБ и ЛБ. С 16-го по 18-йшп. по ЛБ расположили хранилище стрелкового оружия и сигнальных ракет. Дверь в верхней части разборной фигурной выгородки под броневой палубой служила для транспортировки торпед. В двойном борту по ПрБ и ЛБ между стрингерами №№ 4 и 6 в специальных водонепроницаемых наделках установили концевые части труб ТА. Концы труб ТА снаружи закрывались водонепроницаемой крышкой. Начиная с 111-го основного отсека, в двойном дне имелись герметичные цистерны. В IV-м основном отсеке ниже броневой палубы длиной 6,0 м пространство корпуса от 21-го до 26-го шп. двумя палубными платформами разделили на три помещения. Трюм отсека разделили двумя продольными переборками на три помещения, в которых установили упорные подшипники гребных валов. На нижней палубной платформе эти же две продольные переборки образовали три погреба боеприпасов, в которых по ЛБ и ДП расположили 280-мм заряды кормовой башни и их подъёмники, а по ПрБ — 150-мм снаряды и заряды. Последний погреб на 24-м шп. отделял достаточно большой тамбур, из которого имелся доступ во все погреба боеприпасов. На верхней палубной платформе пересечение двух продольных и двух поперечных переборок, проходящих на 21 -м и 26-м шп., обеспечило жёсткое подкрепление барбета кормовой башни. По ЛБ расположили погреб 88-мм унитарных патронов и 150-мм снарядов и зарядов. По ДП в подбашенных подкреплениях имелся погреб и подъёмник 280-мм снарядов кормовой орудийной башни, а по ПрБ — погреб 88-мм унитарных патронов. По обе стороны от бортовых погребов с 21-го шп. начинались защитные угольные ямы. В V-м основном отсеке длиной 7,2 м проходила только одна верхняя палубная платформа. В трюме в расположенных рядом трёх отдельных помещениях установили конденсаторы главных паровых машин. На верхней палубной платформе по ПрБ и ЛБ имелись помещения кормовых динамомашин (по две в каждом) и по ДП, помещения для двух опреснителей и двух воздушных компрессоров ТА и с 30-го шп. пост управления № 1. Между 31 и 32-м шп. имелся поперечный проход в обе стороны от ДП, идущий через довольно широкие защитные ямы до двойного борта. В VI-м основном отсеке ниже броневой палубы длиной 10,8 м пространство корпуса с 32-го по 41-й шп. занимало машинное отделение (МО). От настила двойного дна до броневой палубы двумя противоторпедными переборками, расположенными над местом прохождения стрингеров № 4, и двумя продольными переборками, расположенными над местом прохождения стрингеров № 1, МО разделили по всей высоте на три помещения главных паровых машин. В каждом установили главные паровые машины и различные вспомогательные механизмы. Рядом с помещениями бортовых паровых машин за 30-мм противоторпедными переборками располагались защитные ямы, за ними коффердамы, разделённые настилом на верхнюю и нижнюю части, и далее по две верхних и нижних цистерны двойного борта. Снизу под цистернами двойного борта располагалось двойное дно. На каждой стороне от среднего килевого листа стрингера №№ 1, 2а и 4 и водонепроницаемая переборка на 37-м шп. делили его на 12 цистерн. Цистерны с 32-го по 37-й шп. использовали для хранения запаса питательной воды, с 37-го по 41-й шп. — запаса мытьевой воды. VII-й основной отсек длиной 6,0 м занимал пространство корпуса с 41-го до 46-й шп. ниже броневой палубы. Через него проходили верхняя и нижняя палубные платформы. В трюме по обе стороны от среднего килевого листа образовали два прохода высотой 1,75 м и шириной 1,4 м для трубопроводов системы осушения и кренования, доступ в которые осуществлялся из среднего помещения главных паровых машин и из заднего КО. Пространство трюма двумя противоторпедными, двумя продольными переборками и средним килевым листом, доходящим до броневой палубы, разделили на четыре погреба боеприпасов. На настиле двойного дна по обе стороны от среднего килевого листа расположили погреба 150-мм снарядов и зарядов, под задними бортовыми 280-мм орудийными башнями — погреба 280-мм снарядов и их подъёмники. Через откидные двери эти погреба сообщались между собой. Эти же противоторпедные, две дополнительные продольные переборки и средний килевой лист на настиле нижней палубной платформы также образовали четыре погреба боеприпасов. В двух средних расположили 280-мм заряды, ещё в двух совместных, у бортов под задними бортовыми башнями, также 280-мм заряды и их подъёмники и 88-мм унитарные патроны. На верхней палубной платформе по ДП проходил центральный коридор, с обеих сторон к нему примыкало по проходу главных паропроводов шириной 1 м. По обеим сторонам от этих проходов дополнительные продольные переборки также образовали четыре погреба боеприпасов. В двух средних расположили 150-мм снаряды и заряды, а два крайних были общие для 280-мм зарядов и их подъёмников двух задних бортовых 280-мм орудийных башен и 88-мм унитарных патронов. Побортно от погребов боеприпасов располагались те же защитные ямы с углём, коффердамы и двойной борт, а ниже трюма — двойное дно. В VIII-м основном отсеке длиной 9,6 м пространство корпуса с 46-го по 54-й шп. от настила двойного дна до броневой палубы, ограниченное с боков 30-мм противоторпедными переборками, без перерыва занимало заднее котельное отделение (КО). По ДП КО условно поделили пополам на две кочегарки, каждая с двумя водотрубными котлами морского типа (системы Шульца) и различными вспомогательными механизмами. Вдоль ДП под броневой палубой, опираясь на пиллерсы, проходил центральный коридор. Вдоль каждой кочегарки расположили продольную расходную угольную яму, наружные стенки которой являлись противоторпедными переборками. Побортно за продольными угольными ямами и противоторпедными переборками находились защитные ямы с углём, коффердамы и двойной борт. Первые представляли собой единое помещение, коффердамы настилом разделили на два уровня, последние имели по две цистерны. В двойном дне имелось восемь цистерн. В IX-м основном отсеке длиной 9,6 м пространство корпуса ниже броневой палубы с 54-го по 62-й шп. точно так же занимало среднее КО с четырьмя водотрубными котлами морского типа (системы Шульца) и различными вспомогательными механизмами. Устройство среднего КО было аналогично кормовому. Продольные расходные угольные ямы, защитные ямы с углём, коффердамы и двойной борт были устроены так же, как и в VIII-м основном отсеке; в двойном дне тоже имелось восемь цистерн. Х-й основной отсек длиной 6,0 м занимал пространство корпуса ниже броневой палубы с 62-го по 67-й шп., разделённое верхней и нижней палубными платформами на три уровня. В трюме по ПрБ и ЛБ рядом с противоторпедными переборками под передними бортовыми 280-мм орудийными башнями разместили погреба 280-мм снарядов и их подъёмники, за ними ближе к ДП — погреба 150-мм снарядов и зарядов, доступ в которые имелся через двери в переборках. По обе стороны от средней диаметральной переборки часть последних погребов выделили под проходы для трубопроводов системы осушения и кренования. На нижней палубной платформе по обе стороны от расположенной по ДП продольной переборки разместили погреба 280-мм зарядов, у бортов под передними бортовыми башнями и до противоторпедной переборки погреба, общие для 280-мм зарядов (и их подъёмники) и 88-мм унитарных патронов. На верхней палубной платформе по ДП проходил центральный коридор, с 63-го до 66-го шп. расширяясь до 3 м. Это помещение площадью 10,8 кв.м использовали как пункт управления торпедного оружия, телефонный коммутатор, боевой штурманский пост и как центральный пост живучести. С обеих сторон к нему примыкало по одному узкому проходу главных паропроводов. По ПрБ от прохода расположили погреб 150-мм снарядов и зарядов, за ним до противоторпедной переборки погреб, общий для 280-мм зарядов (и их подъёмник) и 88-мм унитарных патронов. По ЛБ от прохода расположили погреб, общий для 150-мм снарядов и зарядов и 88-мм унитарных патронов. С последним граничило помещение, разделённое надвое поперечной переборкой на 65-м шп. В нём установили воздушный компрессор ТА. Расположенные побортно от погребов боезапаса, защитные ямы с углём и коффердамы в пределах этого основного отсека имели по одному помещению, в двойном борту по одной верхней и нижней цистерне по ПрБ и ЛБ. В двойном дне имелось восемь цистерн. В XI-м основном отсеке длиной 9,6 м пространство корпуса ниже броневой палубы с 67-го по 75-й шп. между 30-мм противоторпедными переборками от настила внутреннего дна до броневой палубы без перерыва занимало переднее КО. Условно отсек поделили по ДП пополам на две кочегарки, в каждой с двумя водотрубными котлами морского типа (системы Шульца) и различными вспомогательными механизмами. Вдоль ДП под броневой палубой, опираясь на пиллерсы, проходил центральный коридор. В каждой кочегарке ближе к борту расположили продольную расходную угольную яму. В двойном дне имелось восемь цистерн, доступ в которые имелся через горловины лазов из обеих кочегарок. ХII-й основной отсек длиной 13,2 м располагался в пространстве корпуса с 75-го по 86-й шп. между противоторпедными переборками от настила внутреннего дна до броневой палубы. Через отсек проходили обе палубные платформы. Две продольные переборки, расположенные на стрингерах № 2, проходили через основной отсек от настила внутреннего дна до броневой палубы, но в районе верхней палубной платформы от 81-го до 86-го шп. смещались на 0,5 м наружу, образуя подкрепления носовой 280-мм орудийной башни. Точно так же поперечная переборка на 81-м шп. проходила через весь основной отсек, за исключением района ДП на верхней палубной платформе, где башенное подкрепление образовывало стенку. В трюме имелась ещё одна расположенная по ДП продольная переборка, что позволило здесь образовать восемь отдельных помещений. Из них четыре по Л Б использовали в качестве двух кладовых сухой провизии, а расположенные ближе к ДП — как помещение вспомогательного конденсатора и холодильной машины (рефрижератора). Помещения по ПрБ у противоторпедной переборки использовали как кладовые мясных продуктов. Между переборкой, являющейся продолжением среднего килевого листа, и продольной переборкой проходила ещё одна поперечная переборка, образуя здесь таким же образом три помещения: аварийного насоса и кладовые продуктов, упакованных в стеклянную тару. На нижней палубной платформе обе боковые продольные переборки и поперечная переборка на 81-м шп. образовали шесть помещений, два из которых, расположенные побортно у противоторпедных переборок, занимали общие погреба 150-мм снарядов и зарядов и 88-мм унитарных патронов. В расположенном по ДП погребе разместили 280-мм заряды носовой башни и их подъёмники. На верхней палубной платформе имелись помещения носовых динамомашин (по две в каждом). Помещение по ДП разделили поперечными переборками и в результате образовали центральный командный пост и погреб 88-мм унитарных патронов. От 79-го шп. до стенки башенного подкрепления (81-й шп.) разместили погреб боеприпасов для проведения салютов. На 81-ми 86-м шп. установили водонепроницаемые стенки башенного подкрепления носовой 280-мм орудийной башни, а внутри него, погреб 280-мм снарядов и их подъёмники. По обе стороны от этого подкрепления, отделённые специальными продольными переборками, расположили два погреба 88-мм унитарных патронов. По обеим сторонам основного отсека расположили защитные ямы, имевшие на каждом борту по две цистерны, двойной борт с двумя нижними и двумя верхними цистернами. XIII-й основной отсек длиной 7,2 м ниже броневой палубы с 86-го по 92-й шп. по высоте разделили нижней палубной платформой на две части. В трюме двумя продольными переборками по ДП образовали помещение холодильной установки и на каждом борту по три цистерны питьевой воды. Нижнюю палубную платформу от одного двойного борта до другого занимали единое помещение для двух передних бортовых ТА. Фигурной выгородки, разделявшей помещение на два, здесь уже не было. По ПрБ и ЛБ расположили небольшие кладовые запасных частей и принадлежностей ТА. В двойном борту по ПрБ с 86-го по 90-й шп. имелась цистерна, в которой оборудовали водонепроницаемую наделку для выхода трубы бортового ТА ПрБ. По ЛБ с 86-го по 88-й шп. и с 90-го по 92-й шп. оборудовали две цистерны двойного борта, в одной из которых также устроили водонепроницаемую наделку для выхода трубы бортового ТА ЛБ. Конец трубы ТА снаружи закрывался водонепроницаемой крышкой. Двойное дно доходило до краёв нижней палубной платформы и имело от ДП на каждом борту по две цистерны. XIV-й основной отсек длиной 8,4 м с 92-го по 97-й шп. по высоте от настила внутреннего дна до броневой палубы разделили нижней палубной платформой на две части. Средней диаметральной переборкой трюм разделили на два отдельных помещения кладовых мучных изделий. По ПрБ отделили выгородку для размещения практических отделений торпед и по ЛБ такую же для зарядных отделений торпед. Двойное дно доходило до краёв нижней палубной платформы и имело две цистерны, по одной на каждом борту. XV-й основной отсек длиной 10,8 м ниже броневой палубы с 99-го по 108-й шп. по высоте разделили нижней палубной платформой на две части. В расположенное в трюме помещение носового ТА имелся доступ через дверь в переборке на 99-м шп. из XIV-го основного отсека. На палубной платформе на 102-м и 105-м шп. установили водонепроницаемые переборки, по высоте доходящие до броневой палубы. Побортно от прохода разместили по ПрБ кладовую для продуктов в стеклянной таре, по ЛБ — кладовую стеклянной посуды. Двойное дно доходило до краёв палубной платформы и имело две цистерны, по одной на каждом борту. В XVI-м основном отсеке длиной 8,6 м ниже броневой палубы со 108-го шп. и до форштевня помещения в трюме и на палубной платформе разделили водонепроницаемой переборкой на 111-м шп., по высоте доходящей до броневой палубы, на четыре части. В трюме проходила труба носового ТА, закрывающаяся на 111-м шп. снаружи водонепроницаемой крышкой. Доступ в это помещение был возможен через горловину в переборке на 108-м шп. Начиная со 111-го шп. и далее в нос, помещение служило в качестве таранного отсека. На палубной платформе помещения со 108-го по 111-й шп. также оборудовали как дифферентовочные цистерны. В пространстве выше кормовой части броневой и по высоте до промежуточной палубы от кормы до 21-го шп. высотой 1,16 м, а у бортов несколько выше в самой корме имелись пустые помещения, далее разместили различные кладовые: вина и продуктовых запасов для командира, личных вещей офицерского состава, шкиперского имущества, склад парусиновых коек экипажа и по ПрБ помещение привода шпиля. На скосах броневой палубы по ЛБ и ПрБ с 21-го по 41-й шп. расположили резервные угольные ямы, а по высоте от броневой до батарейной палуб — верхние угольные ямы. В пространстве выше кормовой части броневой и по высоте до промежуточной палубы от 86-го шп. до форштевня высотой 1,86 м, а у бортов несколько выше разместили помещение привода носовых шпилей и кладовые различного имущества, кубрики для команды, кладовые трального и подрывного имущества, а со 111-го шп. и до форштевня шли пустые помещения таранного отсека. Конструктивная подводная защита
Согласно Эверсу: "Становившаяся всё более необходимой хорошая подводная защита от снарядов и торпед явилась серьёзной проблемой, которая в то время была хорошо продумана и систематически проработана только в Германии. В противоположность английским кораблям и кораблям других наций, только германские корабли обладали основательной подводной защитой, проверенной на многих предварительных испытаниях, действенность которой подтвердилась во время войны. Защитный противоминный пояс корабля от торпедных и минных попаданий требовал значительно большей ширины кораблей, чем у других наций. Он придавал им значительную остойчивость и относительную невосприимчивость к бортовому проникновению воды". Важным достоинством подводной конструктивной защиты была сравнительно большая глубина. При ширине самого корпуса 26,3 м (без учета толщины главного броневого пояса) она состояла в районе КО на миделе из ширины двойного борта — 1,14 м, коффердама -- 1,42 м, защитной угольной ямы — 2,12 м и расходной угольной ямы — 1,81 м, дополнительно защищавших от проникновения осколков, что в сумме составляло 6,49 м с каждого борта, оставляя для КО 13,32 м или 51% ширины корпуса. В районе МО и погребов боезапаса, ограниченных 30-мм противоторпедной переборкой, расходные угольные ямы отсутствовали, увеличивая ширину МО и погребов боезапаса до 16,94 м, оставляя глубину защиты менее 4,6 м. При этом 30-мм противоторпедные переборки считались достаточно надёжными, лишь на линкорах типа Kaiser поставили переборку из 40-мм броневой стали. Коффердамы служили камерой расширения при взрыве пробивших броневой пояс снарядов и торпед. Все эти переборки должны были дополнять назначение бортовой брони по защите внутренних частей корабля от давления газов и действия осколков брони и снарядов, хотя их 8-мм стенки вряд ли могли служить в качестве противоосколочных переборок. В корме небронированные части борта защитили только проходящей ниже ватерлинии бронированной палубой и делением корпуса многочисленными поперечными переборками на мелкие отсеки и помещения.
Рангоут и такелаж
Трубчатые мачты изготовили из мягкой судостроительной стали Сименс-Мартена толщиной стенок 4-6 мм. Их наружный диаметр в основании равнялся 550 мм. при проходе через верхнюю палубу увеличивался за счёт элементов крепления до 680 мм и у топа уменьшался до 300 мм. В точках закрепления мачт в основании и при проходе через палубы предусмотрели установку деревянных прокладок. Мачты поддерживали стальные ванты диметром 40 мм. Полая труба фок-мачты одновременно служила вентиляционным каналом центрального коридора.
Наблюдательный пост установили на 4 м ниже топа каждой мачты (28 м выше КВЛ) и оборудовали входным люком и леером (поручнями), а для спуска-подъёма проходил скоб-трап. На передней части грот-мачты и задней части фок-мачты установили 4-метровые укосины (вылеты, поперечные стрелы), служащие для подъёма стеньги и поддержки рея. Кроме того, в качестве гафеля для флага на грот-мачте предусмотрели вылет длиной 2,5 м. Длинные наклонные деревянные стеньги радиоантенн длиной 10 м, по одной на каждой мачте впервые были введены на линкорах типа "Nassau" и затем вновь нашли свое применение только при постройке линкоров типа "Bismarck". На каждой мачте установили по два гафеля для флага, один флагшток длиной 4,5 м и оборудовали одним сигнальным реем длиной 13,2 м. Ради такелажа на Nassau, как и на Blücher, окончательно отказались от постов управления артиллерийским огнем на марсах. Вместо этого в немецком флоте предполагали введение решетчатых мачт по американскому образцу. Но на это не решились. Решетчатые мачты имели недостатки: представляли собой крупную мишень, имели большие колебания, и их трудно было содержать в исправности. Для управления огнем они не использовались, поскольку в германском флоте управление огнем производилось из боевой рубки, расположенной на высоте мостика. Напротив, на "Dreadnought" предпочли высокорасположенный пункт централизованного управления артиллерийским огнем и выбрали для этого верхнюю часть треногой мачты, имея взамен не только ухудшение условий наблюдения от задымления газами дымовой трубы и собственных выстрелов, но и увеличение предела дальности в бою на дальних дистанциях. Это не было нововведением, поскольку уже имелось на первом британском броненосце с бронированными башнями "Кэптен" (1867 г.). чтобы при стрельбе избежать помех от многочисленных вант. На "Dreadnought" и нескольких следующих английских линкорах фок-мачта стояла неудачно — позади передней трубы, дымовые газы от которой сильно нагревали её и окутывали марс. На линкорах типа "Nassau" первоначально предполагали такое же положение фок-мачты, но от этого отказались, поскольку она не несла поста управления артиллерией. Окончательно было решено расположить мачту вплотную к носовой дымовой трубе и впереди неё.
На линкорах типа "Nassau" артиллерию главного калибра из двенадцати 280-мм скорострельных морских орудий (типа SKL/45 с длиной канала ствола 45 калибров — 12600 мм в башенных лафетах на поворотной орудийной платформе образца 1907г.) попарно установили в шести статически уравновешенных (отбалансированных) орудийных башнях. Важным нововведением было применение на них башенных дальномеров. Орудия разместили на спаренных лафетах с возможностью раздельного вертикального наведения в башенных установках новой конструкции. Согласно Конвэю вес ствола 280-мм орудия с затвором составлял 39,17 т, против 58 т 305-мм орудия линкора "Dreadnought". Каждый орудийный ствол имел для отката салазки. Лафеты установили во вращающиеся орудийные столы, опиравшиеся на расположенные в неподвижных основаниях барбетов шаровые опоры. Согласно Конвэю угол возвышения составлял +20° с дальностью стрельбы 20400 м (110 кбт.); согласно Грёнеру, угол снижения стволов орудий -6°, угол возвышения +20° с дальностью стрельбы 18900 м (102 кбт.), позже, с принятием на вооружение нового снаряда, дальность стрельбы увеличилась до 20400 м (110 кбт.); согласно другому источнику, угол возвышения +20° с дальностью стрельбы полным зарядом 21000 м (113 кбт.). Установки обеспечивали угол возвышения орудий +20°, угол снижения для бортовых башен -6°, а для башен в оконечностях -8°, поскольку на кораблях были установлены башни двух (имевших некоторые отличия) типов. Бортовые башни более раннего выпуска носили литерное обозначение Drh.L.C/06 — вращающийся лафет образца 1906 г. и занимали пространство до броневой палубы, установленные по ДП башни Drh.L.C/07 — вращающийся лафет образца 1907 г., занимали пространство до нижней палубной платформы.
Снаряды и заряды поднимали из находящегося в подводной части корабля погреба боезапаса по вертикальному бронированному элеватору на батарейную палубу, расположенную ниже вращавшейся вместе с башней орудийной платформы. Там внутри барбета боеприпасы выгружали из элеватора, перевозили на специальной тележке на то место, где располагался подъёмник в башню, который подавал их на линию заряжания для последующей его досылки в канал ствола. Таким образом создали перегрузочную камеру.
Здесь перегрузочная камера имела другую конструкцию и расположение: она и нижний элеватор, который выходил из погреба боеприпасов позади орудий, подвешивались к погону башни и вращались вместе с ней. Соединяющим звеном между погребом боеприпасов и бронированным подъемно-транспортным устройством в погребе боеприпасов был так называемый круговой вагон, то есть узкая вращающаяся платформа в погрузочном помещении погреба. При этом получалась значительно большая скорость стрельбы (три выстрела в минуту на ствол), чем при транзитном элеваторе, когда каждый раз производились две перегрузки на пути из порохового погреба до орудия.
В целях унификации, чтобы иметь одинаковый тип башен на корабле, для "Nassau" и "Westfalen" выбрали бронированные элеваторы, также и для расположенных по ДП башен. Однотипные с ними линкоры "Rheinland" и "Posen" получили концевые башни уже с подвешенными к погонам элеваторами и перегрузочными камерами. Точно такие же бортовые башни смогли установить на следующем за ними линкоре "Ostfriesland", но уже дальше от борта вследствие большей ширины корабля.
В погребах боезапаса снаряд, основной и добавочный полузаряды перемещали при помощи механических устройств и приспособлений. Из погреба их подавали в перегрузочное отделение с помощью жёстких двойных подъёмников с электроприводом (элеваторов) или вручную. Отсюда при каждом заряжании посредством расположенного на лафете подъёмника с электроприводом боеприпасы поднимали в башню. В каждой башне имелось четыре подъёмника, два для снарядов и два для зарядов. Для каждого ствола в качестве резервного имелся вспомогательный элеватор, осуществлявший подъём из перегрузочного отделения. Кроме того, все подъёмники и элеваторы имели ручной привод.
Погреба боезапаса расположили под башнями. Для перемещения боеприпасов в погребах использовали лебёдки как ручные, так и с электроприводом. Из погреба боеприпасы подавались с помощью подъёмников с электроприводом или вручную. В качестве резервного использовали лебёдки с ручным приводом. Рельсовый путь на промежуточной палубе, двери и сквозные проходы в подбашенных подкреплениях обеспечивали возможность транспортировки боеприпасов между отдельными башнями. Во всех башнях снарядные и зарядные погреба расположили в подбашенном отделении. Снаряды и заряды хранили в стеллажах. Снарядные погреба находились на днище трюма под размещёнными на палубных платформах зарядными погребами, сгруппировав их ближе к ДП.
Не возникло особенных вопросов и в отношении размещения башен. Все предшествующие проекты предполагали одинаковое расположение главной артиллерии, или как тогда говорили, "шесть башен по углам шестиугольника". Казалось, ничто иное никогда не будет приниматься во внимание.
У кормовой башни "D" ось вращения на всех линкорах располагалась по ДП на 23 1/2-м шп., у носовой башни "А" ось вращения располагалась по ДП на 83 1/2-м шп., в передних бортовых башнях "В" (ПрБ) и "F" (ЛБ) оси вращения располагались на 64 1/2-м шп. и на 8,4 м от ДП. и в задних бортовых башнях "С" (ПрБ) и "Е" (ЛБ) оси вращения располагались на 43 1/2-м шп. и на 8,9 м от ДП. Расстояние между осями вращения носовой "А" и кормовой "D" башен составляло 72 м, между осями кормовой "D" и задних бортовых "С" и "Е" 24 м, между осями задних "С" и "Е" и передних "В" и "F" бортовых 25.2 м, между осями последних и носовой башни "А" 22,8 м.
На линкорах типа "Nassau" сектора ведения огня башен составляли 280° для кормовой и носовой башен и 160° для всех бортовых. В сумме это составляло 1200° или по 200° на башню. При этом в различных секторах ведения огня действовало разное число орудий. Погонный огонь в секторе 355°-5°(100) и ретирадный в секторе 175°-185° (10°) могли вести шесть орудий. В секторе 5°-25°(20°) четыре орудия, 25°-40° (15°) шесть, 40°-140° (100°) восемь, 140°-155° (15°) шесть, 155°-175° (20°) четыре, ретирадный 175°-185° (10°) - шесть, 185°-205° (20°) четыре, 205°-220° (15°) шесть, 220°-320° (100°) восемь, 320°-335° (15°) шесть, 335°-355° (20°) четыре. Причём восемь орудий действовали в двух секторах обстрела, суммарно 200°: шесть в шести секторах обстрела, суммарно 80°; четыре в четырёх секторах обстрела, суммарно 80°. Погонный огонь в секторе 60° и ретирадный 40° могли вести четыре орудия. На линкоре "Dreadnought" сектора ведения огня башен составляли 285° для носовой башни. 300° для кормовой, 180° для двух бортовых и два сектора по 130° для четвертой башни. В сумме это составляло 1205° или по 241° на башню. При этом в различных секторах ведения огня действовало разное число орудий. Строго по носу и корме огонь могли вести шесть орудий. В секторе 0°-30° четыре орудия, 30°-142°30' (112°30Т) восемь, 142°30'-160°(17030') шесть, 160°-200° (40°) четыре, 200°-217°30' (17°30') шесть, 217°30'-330° (112°30') восемь, 300°-0° (30°) четыре. Причём восемь орудий действовали в двух секторах обстрела суммарно 225°; шесть в двух секторах суммарно 35°; четыре в четырех секторах суммарно 100° При высоте осей орудий над палубой 2,34 м высота осей орудий над КВЛ составляла для носовой башни "А" "Nassau" 7,75 м ("Posen" и "Rheinland" 7,815 м), кормовой "D" "Nassau" 7,65 м ("Posen" и "Rheinland" 7,745 м) и всех бортовых "Nassau" 7,6 м ("Posen" 7,715 м, "Rheinland" передних "В" и "F" 7,725 м и задних "С" и "Е" 7,715 м). Орудия стреляли двумя ("Rheinland" тремя) типами снарядов одинакового веса по 305 кг (согласно Конвэю [7], 302,4 кг) с начальной скоростью у среза ствола орудия 820 м/с. Общий боекомплект (боевой запас) артиллерии главного калибра составлял 900 выстрелов (75 на ствол). Согласно источникам [10] и [11], штатный боезапас "Nassau" и "Posen" включал 720 полубронебойных снарядов [L/3,2 (Psgr = Panzersprenggranaten)] длиной 3,2 калибра (896 мм) с донным взрывателем и 180 сплошных стальных снарядов (болванок) [L/3 (Stvg = Stahvollgeschossen)] длиной 3 калибра (840 мм), соответственно, 60 и 15 на ствол; согласно одному из источников, штатный боезапас "Rheinland" равнялся 180 фугасных L/3,2 длиной 3,2 калибра (896 мм), 540 полубронебойных L/3,2 и 180 сплошных стальных снарядов (болванок) L/3, соответственно, 15, 45 и 15 на ствол, а также 900 полных зарядов (Pulverladung) к ним, против 800 или по 80 на ствол у линкора "Dreadnought". Полубронебойный снаряд длиной 3,2 калибра (896 мм) с донным взрывателем имел разрывной заряд (2,88) кг (2%). Окраска: красный с чёрной головкой. Второй тип длиной 3 калибра (840 мм) представлял собой сплошной стальной снаряд (болванку) с бронебойным колпачком. Окраска: голубой с чёрной окантовкой. Единый для всех снарядов полный заряд состоял из основного полузаряда и добавочного. Важной особенностью было применение латунных гильз для основных полузарядов. Для добавочных полузарядов по-прежнему применялись двойные шелковые картузы и латунные пеналы, из которых заряды вынимались только перед заряжанием. Вес полного заряда равнялся 144,6 кг, включая 99 кг пороха марки RPC/06 (Rohrenpulver) образца 1906 г. Основной полузаряд весил 119 кг, включая 75 кг трубчатого (макаронного) пороха и гильзу весом 44 кг, добавочный 25,6 кг, включая и 24 кг пороха и шелковый картуз, против 117 кг кордита MD-45 (нитроцеллюлозного бездымного пороха) у линкора "Dreadnought". Сплошной стальной снаряд (болванка) длиной 3 калибра на дистанции 1000 м под углом встречи 60-90° пробивал 600-мм плиту прокатанной железной брони, 420-мм плиту брони компаунд и 300-мм плиту поверхностно закалённой сталеникелевой брони. Полубронебойный снаряд длиной 3,2 калибра с донным взрывателем при попадании в плиту закалённой сталеникелевой брони под углом встречи 90° на дистанции 4000 м пробивал 413-мм плиту, на дистанции 8000 м — 319-мм. По официальным немецким данным, пробивная способность орудия у дульного среза составляла для стальной плиты 889 мм. Сила отдачи орудия при стрельбе полным (основной и добавочный полузаряды) зарядом составляла 220 т, уменьшенным (основной полузаряд) 130 т. Конструкция 280-мм орудия обеспечивала предельную скорострельность три выстрела в минуту.
Управление из боевой рубки как артиллерийским огнем, так и самим кораблем ко времени появления дредноутов стало создавать большие трудности. Централизованное управление огнем потребовало наличия значительно большего, чем раньше количества приборов управления и личного состава. Управление кораблем и артиллерией мешало друг другу. Поэтому уже на додредноутах типа Deutschland оба поста разделили. В то время как Deutschland и Pommern получили двухъярусный пост управления, на трех остальных кораблях пост управления артиллерией был расположен в той же боевой рубке, но несколько позади и выше поста управления кораблём. Так же сделали на броненосном крейсере Blücher, линкорах типа "Nassau", где управление артиллерийским огнем главного калибра производили из передней и задней бронированных боевых рубок, а затем это ввели на всех крупных кораблях кайзеровского флота.
Средний и малый калибр
Согласно Конвэю, ствол 150-мм орудия с затвором весил 5,73 т. Угол снижения стволов орудий составлял -7°, возвышения +25° (в отдельных частях сектора обстрела от -4° до +15°), что обеспечивало дальность стрельбы, согласно Грёнеру, 13500 м (73 кбт.), с 1915 г. 16800 м (91 кбт.); согласно другому источнику, 14800 м (80 кбт.); согласно Конвэю, 14950 м (81 кбт.) при угле возвышения +19°. 15800 м (85 кбт.) при угле возвышения +22°, 16900 м (91 кбт.) при угле возвышения +27° и 17600 м (95 кбт.) при угле возвышения +30°. Эти орудия имели следующие сектора обстрела (место расположения орудия/ № орудия/борт/сектора обстрела): каземат/ № 1/ ПрБ/ 120° (357°- 117°). каземат/№1/ ЛБ/ 120° (243°-3°)/, каземат/ № 2/ПрБ/ 120° (6°- 126°), /каземат/ № 2/ЛБ/120° (234°-354°), каземат/ № 3/ ПрБ/120° (9°- 129°), каземат/ № 3/ЛБ/120° (231°-351°), каземат/ № 4/ ПрБ/ 120° (48.5°-168,5°), каземат/ № 4/ ЛБ/ 120° (191,5-311,5°), каземат/ № 5/ ПрБ/ 120° (50°- 170°), каземат/ № 5/ Л Б/ 120° (190°-310°), каземат/ № 6/ ПрБ/120° (62°- 182°). каземат/ № 6/ЛБ/120° (178°-298°). Сектора ведения огня всех орудий ПрБ и ЛБ составляли 119°-120°. При этом в различных секторах по ПрБ действовало различное число орудий: 0-3° два орудия, 3°-6°(3°) одно, 6°-9°(3°) два, 9°-48°30'(39°30') три, 48°30'-500(1°30') четыре, 50°-62°(12°) пять, 62°-117°(55°) шесть, 117°-126°(9°) пять, 126°-129°(3°) четыре, 1290-168°30'(39°30')три, 168°30'-170°(1°3()') два, 170°-178°(8°) одно, 178°-182°(4°) два. Аналогичными сектора были и по ЛБ. При высоте осей стволов орудий над палубой 1,17 м высота осей орудий над KBЛ составляла 4,2 м. Как погонный и ретирадный, так и бортовой огонь могли вести по шесть орудий, по курсу в секторе 357°-3° (6°) и по корме в секторе 178°-182°(4°) по два орудия. Максимальное число орудий (шесть) могли вести бортовой огонь в двух секторах по 55°, суммарно 110°; минимальное (одно) в четырех секторах, суммарно 22°. Боезапас к орудиям подавался с помощью электропривода со скоростью подачи 4-6 комплектов выстрелов (снаряд-заряд) в минуту или вручную. Механизм подъёма с помощью электропривода или вручную приводил в движение бесконечную цепь с захватами для боеприпасов. Орудия стреляли двумя ("Rheinland" тремя) типами снарядов одинакового веса, согласно Конвэю, по 45 кг с начальной скоростью у среза ствола орудия около 800 м/с. Выстрел состоял из снаряда и единого для всех трёх типов снарядов заряда. Корабли могли принять на борт боеприпасов на 1800 выстрелов противоминным 150-мм калибром (150 на ствол), но штатный боезапас отдельных кораблей различался между собой. Штатный боезапас "Nassau" и "Posen" включал 600 (50 на ствол) полубронебойных снарядов L/3,2 (Psgr-Panzersprenggranaten) с донным взрывателем длиной 3,2 калибра (480 мм) и 1200 (100 на ствол) фугасных снарядов L/3,2 (Spgr = Sprenggranaten) тоже длиной 3,2 калибра (480 мм). Согласно некоторым источникам, на "Rheinland" штатный боезапас включал 180 (15 на ствол) осколочно-фугасных снарядов L/3,3 (Gr = Granaten) длиной 3,3 калибра (495 мм), 600 (50 на ствол) фугасных снарядов L/3,2 (Spgr = Sprenggranaten) длиной 3,2 калибра (480 мм) и 1020 (85 на ствол) полубронебойных снарядов L/3.2 (Psgr-Panzersprenggranaten) длиной 3,2 калибра (480 мм) с донным взрывателем, а также 1800 зарядов (Hauptkartus). Снаряды всех типов весили по 45 кг. Полубронебойный снаряд [L/3,2 (Psgr-Panzersprenggranaten)] длиной 3,2 калибра (480 мм) с донным взрывателем имел разрывной заряд весом 1,05 кг (2,5%), окраску: красный с чёрной головкой. Фугасный снаряд тоже длиной 3,2 калибра (480 мм) имел разрывной заряд весом 1,6 кг (4%), окраску: жёлтый с чёрной головкой. Единый для обоих типов снарядов заряд в латунной гильзе весил 22,6 кг, включая 13,25 кг трубчатого (макаронного) пороха марки RPC/06 (Rohrenpulver) образца 1906 г. Конструкция орудия обеспечивала прицельную скорострельность 10 выстрелов в минуту. Сила отдачи орудия при стрельбе составляла 107 т. Полубронебойный снаряд длиной 3,2 калибра с донным взрывателем при попадании в плиту закалённой сталеникелевой брони под углом встречи 90° на дистанции 4000 м пробивал 144-мм плиту, на дистанции 8000 м — 64-мм. Штатный боезапас 150-мм артиллерии разместили в 13 общих погребах. Выстрелы (снаряди заряд) доставляли на батарейную палубу с помощью 12 подъёмников с электроприводом или вручную с помощью элеваторов, представлявших собой ковшовый конвейер. В качестве резервного использовали лоток для одного выстрела (снаряд и заряд), который после удаления ковша поднимали посредством талей (полиспастов). Погреба боеприпасов также оборудовали рефрижераторными установками, искусственной вентиляцией, и их можно было при необходимости затопить или осушить посредством гибкого прорезиненного рукава. *** Лёгкая противоминная артиллерия состояла из шестнадцати 88-мм скорострельных орудий (так же новой модели) типа SKL/45, с длиной канала ствола 45 калибров (3960 мм), предназначенных для стрельбы по морским целям, по сравнению с двадцати восемью 76-мм орудиями линкора "Dreadnought". Орудия устанавливались на лафете с вертикальной цапфой (центральным штыревым отверстием) типа MPLC/06 образца 1906 г., прикрытые (12-мм) лёгкими стальными щитами стандартной формы. Согласно Конвэю, ствол весил 908 кг. Сила отдачи орудия при стрельбе составляла около 25 т. Установка обеспечивала угол снижения ствола орудия -10°, возвышения +25°, что, согласно Конвэю, обеспечивало дальность стрельбы 10700 м (58 кбт.). Скорострельность составляла до 20 прицельных выстрелов в минуту. Общий боекомплект (боевой запас) 88-мм артиллерии был рассчитан на 2400 выстрелов (150 на ствол), против, соответственно, 8400 и 300 у "Dreadnought". Половину из них составляли унитарные осколочно-фугасные снаряды с головным взрывателем [(Sprenggranaten-Patronen) Spgr.K.Z.], вторую половину — унитарные осколочно-фугасные снаряды с донным взрывателем (Spgr.J.Z.). 88-мм орудия стреляли осколочно-фугасными унитарными патронами (снаряд с гильзой) весом 15,5 кг с начальной скоростью у среза ствола орудия 616 м/с. Снаряд длиной 3,6 калибра (317 мм) и весом, согласно Конвэю, 10 кг имел разрывной заряд весом (0,22) кг (3%). В гильзе помещалось 2,325 кг трубчатого пороха марки RP образца 1906 г. Шестнадцать 88-мм орудий установили четырьмя батареями по четыре в каждой. Носовую батарею с орудиями без щитов установили на батарейной палубе под баком. 88-мм унитарные патроны подавали в неё из погребов боезапасов, расположенных на верхней палубной платформе под броневой палубой в районе от 81 до 86-го шп. по ЛБ и ПрБ (XII-й основной отсек), на поддонах с помощью электромоторов или вручную. Требуемая скорость подачи составляла шесть поддонов в минуту. Вторую батарею с орудиями с круглыми щитами разместили в передней надстройке. 88-мм унитарные патроны подавали в неё из погребов боезапасов, расположенных так же, как и для первой, но несколько дальше к корме — в районе от 77 до 81 -го шп. по ДП (XII-й основной отсек). Третью с орудиями с обычными щитами разместили в задней надстройке. 88-мм унитарные патроны подавали в неё из погребов боезапасов, расположенных так же, как и для первых двух на верхней палубной платформе в районе от 21 до 26-го шп. по ЛБ и ПрБ (IV-й основной отсек). Четвёртую с орудиями без щитов установили на батарейной палубе в кормовой каюте. 88-мм унитарные патроны подавали в неё из тех же погребов боезапасов, что и для третьей батареи. Кроме того, небольшие хранилища 88-мм унитарных патронов оборудовали на броневой палубе в районе 36-го шп. и батарейной в районе 72-го шп. Для каждых двух орудий неподалёку имелись кранцы первых выстрелов, вмещавшие до трёх поддонов унитарных патронов. В различных местах между продольными стрингерами на броневой и батарейной палубах разместили кранцы первых выстрелов всего на 635-640 унитарных патронов. На батарейной палубе между 79 и 80-м шп., на промежуточной по ДП между 38 и 39-м шп. и 28 и 29-м шп., по ЛБ между 29 и 30-м шп. и 21 и 22-м шп. Сектор ведения огня каждого орудия составлял 119-120°. При высоте осей стволов орудий над палубой 0,9 м высота осей стволов орудий над конструктивной ватерлинией составляла для носовой и кормовой батарей 4,25 м, двух средних — 8,5 м. *** На "Nassau" и "Rheinland" два 8-мм пулемёта (на "Posen" и "Westfalen" четыре) с боекомплектом 10000 боевых патронов на ствол не имели определённой назначенной позиции. Закреплённые по-походному, они находились на батарейной палубе в районе 18-го шп. Обычно пулемёты устанавливали на специальных тумбах на палубе или на корабельных плавсредствах. Дальность стрельбы составляла 2400 м, скорострельность 250 выстрелов в минуту. На "Nassau" патроны хранились в специальном хранилище на промежуточной палубе в районе от 21 до 23-го шп. по ЛБ, на "Posen" и "Rheinland" - на нижней палубной платформе в помещении задних бортовых ТА по ЛБ между 16 и 18-м шп. Хранилище имело искусственную вентиляцию, и его можно было при необходимости затопить или осушать посредством гибкого резинового шланга. Патроны подносили вручную. Там же в оружейных комнатах кораблей хранились 355 винтовок образца 1898 г. и 42600 боевых патронов к ним, а также от 98 до 128 пистолетов образца 1904 г. и 24500 боевых патронов к ним. Зенитное вооружение первоначальным проектом не предусматривалось, но в ходе первой мировой войны на кораблях установили по две 88-мм зенитные пушки. Помимо орудий главного и противоминного калибров на борту кораблей имелись две 60-мм десантные пушки "6-cm.SB ts KL/21" (Schnellfeuer Boots Kanone) с длиной ствола 21 калибр, предназначенные для использования в десантных операциях. Пушки устанавливались на колесных лафетах BLL.C/00 (Boots und Landung Lafette). Их можно было использовать также и с катеров или баркасов. Пушка на лафете могла стрелять на дистанцию 4300 м при максимальном возвышении ствола 19,25°. Боекомплект составлял 250 выстрелов на ствол.
Торпедное вооружение Торпедное вооружение линкоров типа "Nassau" состояло, как и у предшествующих типов кораблей, из шести подводных 450-мм ТА. Все торпедные отсеки размещались вне цитадели, ниже броневой палубы: по одному у ахтерштевня и форштевня (1-й и XVI-й основных отсеках) и четыре бортовых, непосредственно под помещениями приводов кормового и носового шпилей — два ближе к корме (III-й основной отсек) и два ближе к носовой оконечности (XVI-й основной отсек) с общим боекомплектом в мирное время 12, а в военное 18 торпед. Все торпедные аппараты были неподвижны, то есть их нельзя было наводить на цель. Носовой ТА расположили в XVI-м основном отсеке на настиле двойного дна под нижней палубной платформой ниже и позади форштевня на "Nassau" в районе от 104 3/4 до 111-го шп. (105 до 110 1/2-го шп. "Posen") на 6,0 м (5,95 м "Rheinland") ниже КВЛ. Труба носового ТА заканчивалась выпускным патрубком, отлитым из мягкой судостроительной стали Сименс-Мартена и расположенным в районе от 109 до 111 -го шп. Четыре одиночных бортовых ТА — сплошные (целые) трубы, кроме ТА № 1, который имел трубу с крышкой, установили в III и XVI-м основных отсеках на 3.6 м (3.5 м "Posen") ниже КВЛ под углом 10° вперёд от траверза и с наклоном -4° к горизонтали. Кормовой ТА горизонтально расположили в 1-м основном отсеке на 1,5 м (1,475 м "Rheinland") ниже КВЛ. Труба кормового ТА заканчивалась выпускным патрубком, отлитым из мягкой судостроительной стали Сименс-Мартена. На кораблях имелись места хранения для торпед типа "S" образца 1906 г., из них: по три в носовом и кормовом помещениях ТА (по две в мирное время), по шесть в каждом бортовом помещении (по четыре в мирное время). Торпеды калибра 450-мм с гироскопическим прибором Обри для прямого курса имели разрывной заряд пироксилина весом 98 кг. Для каждой торпеды имелись одно практическое отделение и одна головная боевая часть, а также два ударных взрывателя. Торпеды из ТА выталкивались сжатым воздухом. Для обеспечения ВВД самих торпед и системы пуска в V и Х-м основных отсеках на верхней палубной платформе установили четыре компрессора ВВД давлением 100 кгс/кв.см типа М образца 1903 г. В каждом помещении бортовых ТА установили по одному главному воздушному аккумулятору, а в оконечностях по одному вспомогательному аккумулятору, от которых по трубопроводам ВВД подавался в распределительные колонки с клапанами. В помещениях бортовых ТА производили обслуживание, регулировку и подготовку торпед к пуску. Две кладовые для хранения взрывателей, запчастей и принадлежностей торпед находились в помещении передних бортовых ТА. Практические отделения и головные боевые части разместили в соседних помещениях. На кораблях имелись места для временной установки лебёдок для погрузки и выгрузки торпед. Места погрузки торпед и торпедопогрузочные люки расположили на верхней палубе по ПрБ впереди мидель-шпангоута, по ЛБ после. В корму транспортёр с торпедой везли наискось по ПрБ от каземата № 4, в носовую оконечность через бронированную шахту за бронированием форштевня. Оба места погрузки торпед связывал рельсовый путь. Пуск торпеды производили электроспуском или вручную. При каждом ТА оборудовали по три места хранения торпед. Для управления торпедным оружием оборудовали восемь постов управления торпедной стрельбой (три в передней и задней боевых рубках и два для носового и кормового ТА). После модернизации 1907-10 гг. количество ТА уменьшили до пяти с общим боекомплектом 13 торпед. В 1916 г. все торпедные аппараты демонтировали. Форштевень уже не был предназначен для тарана. На борту имелось тральное и подрывное оборудование новейшего типа (класса А), которое разместили между броневой и промежуточной палубами в районе от 108 до 111-го шп.
Бортовая броня
В кормовой оконечности бортовая броня от -5-го шп. до 21-го шп. (до начала цитадели) на длине 31,2 м состояла из двух расположенных один над другим поясов брони. Верхние кромки плит верхнего броневого пояса располагались на 2,1 м выше КВЛ, то есть не доходили до уровня батарейной палубы на 0,9 м. Это позволило в междупалубном пространстве (между промежуточной и батарейной) установить иллюминаторы. Ниже КВЛ броневые плиты опускались на разную глубину — от 880 мм на -5-м шп. до 1,24 м на 4-м шп. и 1,52 м на 14-м шп. Далее нижние кромки плит уравнивались с кромками плит главного броневого пояса. Толщина плит по высоте была неодинаковой — 120 мм у нижнего броневого пояса и 90 мм у верхнего. Главный броневой пояс расположили в районе с 21-го по 86-й шп. на длине 78 м, прикрывая бортовые и концевые барбеты 280-мм орудий, погреба боезапаса и машинно-котельные отделения (IV-XII-й основные отсеки). По высоте главный броневой пояс состоял из одного ряда вертикально расположенных броневых плит высотой 4,57 м переменной толщины, начинался у нижнего скоса броневой палубы на 1,6 м ниже КВЛ и возвышался на 2,97 м выше КВЛ, доходя до уровня батарейной палубы, где образовывал броневой пояс цитадели. По высоте толщина плиты главного броневого пояса не была постоянной. В средней части плиты на длине 2 м она имела толщину 290 мм, но начиная с расстояния 1,28 м от верхней и нижней кромок, сужалась по направлению к кромкам до толщины 170 мм, образуя скосы. Плиты главного броневого пояса укладывали на 50-мм подкладку из тикового дерева и крепили к 10-мм бортовой обшивке. Иногда эти 10 мм прибавляют к 290-мм броне, получая таким образом максимальную толщину брони 300 мм. Согласно одному из источников, головной Nassau, в отличие от остальных кораблей серии, вообще имел максимальную толщину броневых плит 270 мм. В носовой оконечности 80-мм бортовая броня начиналась от носового траверза и продолжалась до форштевня. От 86-го до 108 1/2-го шп. на длине 27 м бортовое бронирование состояло из двух, а от 108 1/2-го шп. до форштевня на длине 8 м из трёх 80-мм поясов. От 86-го до 111 -го шп. верхние кромки плит верхнего броневого пояса на 750 мм не доходили до штрека батарейной палубы — как и в корме для размещения иллюминаторов. От 111-го шп. и до форштевня верхние кромки плит опирались на штрек палубы на 60 мм выше линии подъёма. Нижние кромки нижнего броневого пояса шли на том же уровне, как у главного броневого пояса, на 1,6 м ниже КВЛ, но в районе 104-105 шп. (немного не доходя до клюзов) они опускались гораздо ниже и у самого форштевня доходили до 2,8 м ниже КВЛ. Плиты главного броневого пояса по боковым сторонам в верхней и нижней части имели фигурные пазы для соединительных переходников, состоящих из прямоугольной части и двух трапеций, по форме напоминавших ласточкин хвост, и с их помощью скреплялись друг с другом. Плиты были выгнуты наружу и своими нижними кромками опирались на приклёпанный к наружной обшивке корпуса сплошной уголковый шельф на уровне нижнего края скоса броневой палубы. Плиты главного броневого пояса установили на 50-мм рубашке из тикового дерева и крепили гуженами (специальными стальными болтами из никелевой стали) диаметром 45 и 80 мм. Гужёны ввинчивали с обратной (незакалённой) стороны броневых плит и наружными концами через коробчатые подкладки с резиновыми прокладками крепили шайбами и гайками к 10-мм однослойной бортовой обшивке из судостроительной стали. Для защиты от продольных попаданий снарядов в середину корабля со стороны носа и кормы оконечности главного броневого пояса замыкались траверзными броневыми переборками, расположенными между промежуточной и батарейной палубами. Эти переборки из 200-мм броневых плит цементированной стали установили на 21-м (кормовая) и 86-м шп. (носовая). Бронирование цитадели на линкорах типа "Nassau" простиралось от кормовой башни главного калибра до носовой. Продольную стенку образовывала проходящая до батарейной палубы верхняя часть плит главного броневого пояса, имевшая в этом районе броневых плит толщину, постепенно уменьшающуюся до 170 мм. На 21-м и 86-м шп. цитадель замыкали поперечные броневые переборки, охватывающие по дуге внутренним радиусом 3,9 м основания концевых 280-мм орудийных башен. По высоте траверзные переборки состояли из двух расположенных один над другим поясов брони. 200-мм нижний из цементированной стали с закалённым наружным слоем проходил от расположенной ниже КВЛ части броневой палубы до промежуточной, 280-мм верхний от промежуточной до батарейной. Согнутые по наружной окружности барбета броневые плиты, на 21-м шп. толщиной 120 мм из никелевой броневой стали и 86-м шп. 100 мм, охватывающие по дуге внутренним радиусом 3,9 м основания концевых 280-мм орудийных башен, соединялись с траверзными переборками. Стыки поясов имели пазы и соединялись между собой посредством планок и стяжек. Под броневыми плитами поперечных переборок цитадели не имелось ни бортовой обшивки, ни шпангоутов. В кормовой поперечной броневой переборке на промежуточной палубе по ПрБ установили бронированную дверь той же толщины, что и переборка. Артиллерию калибра 150-мм расположили в бронированном каземате на батарейной палубе в средней части корпуса в двенадцати одноорудийных казематах, по шесть с каждого борта. Бронирование каземата с вырезами под орудийные порты и отогнутыми частями брони для обеспечения секторов обстрела простиралось по обоим бортам корпуса от кормовой до носовой башен главного калибра. Вдоль борта бронирование каземата произвели от 28-го до 79-го шп. на длине 61,2 м 160-мм броней (орудийные амбразуры 80 мм). Выше главного пояса от 37-го до 79-го шп. на бортовую обшивку навешивали броневые плиты каземата, по высоте доходившие до уровня верхней палубы. От 28-го до 37-го шп. броневые плиты устанавливали параллельно бортам на батарейной палубе, отступя от бортов на 1,3 м, до и после бронирование каземата шло наискось к середине барбетов, расположенных по ДП башен главного калибра. Плиты толщиной 160-мм установили тем же способом, что и плиты главного броневого пояса на 50-мм прокладке из тикового дерева и крепили гуженами к бортовой обшивке. Под бронёй проходящих наискось траверзных переборок каземата не имелось ни бортовой обшивки, ни шпангоутов. Они крепились к батарейной палубе двойными угольниками, а между собой посредством стыковых планок и стяжек. В броневых переборках с каждого борта имелись двери той же толщины, что и переборка. Внутри каземата между орудиями на 34, 43, 55, 65 и 75-м шп. ЛБ и ПрБ установили противоосколочные переборки из 20-мм броневой стали с низким содержанием никеля. Эти переборки проходили до расположенной на каждом борту на 3,4 м от ДП и от 27-го и 80-го шп. 15-мм продольной противоосколочной переборки из такой же стали. 160-мм вертикальную броню каземата изготовили по технологии Круппа из цементированной стали с закалённым наружным слоем, 80-мм плиты амбразур — из никелевой броневой стали, крышу и настил пола каземата покрыли 30-мм плитами из стали с низким содержанием никеля. Палубная броня
Броневая палуба из 55-мм никелевой броневой стали проходила по всей длине корабля от форштевня до поперечной переборки на -5-м шп. на трёх уровнях. Под цитаделью от 21-го до 86-го шп. она располагалась на 860 мм выше КВЛ, от 86-го шп. в нос по ДП, почти на 1 м ниже КВЛ и от 21-го шп. в корму на 300 мм ниже КВЛ. В районе установки рулевых машин и румпельном отделении её толщину увеличили до 80 мм. От -1-го в корму и от 103-го шп. до форштевня палуба проходила под наклоном вниз, изогнутая таким образом, что везде стыковалась с нижней кромкой главного броневого пояса. Седловатость (погибь) на 21-м и 86-м шп. перекрывалась поперечными вертикальными броневыми переборками. Точно так же побортно наружные края броневой палубы стыковались с нижней кромкой главного броневого пояса. Боковой наклон скоса броневой палубы из 80-мм никелевой броневой стали в средней части корпуса относительно горизонтали составлял 30°. Горизонтальное бронирование броневой палубы осуществлялось двумя типами брони. Для верхнего уровня (под цитаделью) использовали листы никелевой стали (с ограниченным содержанием никеля), для нижних — мягкую судостроительную сталь. Отверстия в броневой палубе в основном имелись только в расположенной выше КВЛ горизонтальной части. Кожухи дымовых труб, трубопроводы подачи и слива воды, горловины угольных ям, тяговые механизмы и различные кабели проходили через неё только через эти отверстия. Люки для трапов и закрытия горловин угольных ям, расположенные вне цитадели, имели броневые крышки толщиной, соответствующей толщине палубы, и легко открывались одним человеком. В расположенных ниже КВЛ частях броневой палубы между -1-м и 1-м шп. по ЛБ и ПрБ имелись два отверстия для рудерписа (баллера) руля и между 6-м и 7-м шп. ещё два больших отверстия, закрываемые съёмными водонепроницаемыми броневыми листами на болтах, для погрузки и установки тяжёлых и крупногабаритных частей рулевых машин. Между 14 и 15 1/2-м шп. по ДП и 92 и 93-м шп. слева от ДП прорезали отверстия для бронированных шахт трапов, а между 75 и 76-м шп. по ДП отверстие бронированной шахты коммуникационной трубы. Между 24 и 26-м шп. по ПрБ имелся большой люк для погрузки торпед и крупногабаритных частей рулевых машин. Кроме названных, дополнительно броневую палубу расположили: над цитаделью в местах, не перекрытых бронёй каземата, вокруг оснований 150-мм орудий покрыли броневыми плитами батарейную палубу; покрыли двумя слоями плит над казематом на верхней палубе до и вокруг барбетов носовой и кормовой орудийных башен. Люки для прохода и горловины угольных ям на броневой палубе закрывали бронированными крышками той же толщины, что и палуба. Конструкция бронированных крышек была устроена так, чтобы её легко можно было открыть в любых условиях одному человеку как с бронированной, так и промежуточной палуб. Световые фонари и вентиляционные отверстия площадью более 0,3 кв.м, а также проходы для дымовых труб оборудовали броневыми колосниками из судостроительной стали. Для защиты вентиляционных шахт МО и нижних помещений, кожухов дымовых труб КО в местах прохода их через броневую палубу установили противоосколочные бронированные колосники с размерами отверстий 40x100 мм.
Главное МО, занимавшее VI-й основной отсек с 32-го по 41-й шп. длиной 10,8 м, двумя водонепроницаемыми продольными переборками от настила внутреннего дна до броневой палубы разделили на три одинаковых помещения, в которых рядом друг с другом вдоль корпуса установили три главные паровые поршневые машины, вращавшие каждая свой винт. Помещение вспомогательных механизмов, также разделённое двумя водонепроницаемыми продольными переборками на три помещения, расположили в V-м основном отсеке с 26-го по 32-й шп. длиной 7,2 м. Оба отсека на протяжении с 26-го по 41 -и шп. ограничили с бортов 30-мм противоторпедными переборками. Длина всего МО составляла 18 м или 12,4% длины корпуса по КВЛ по сравнению, соответственно, с 21,9 м или 13,8% длины корпуса по КВЛ линкора "Dreadnought".
Каждая главная паровая машина имела ступенчатое расширение пара в один цилиндр высокого давления, один цилиндр среднего давления и один цилиндр низкого давления. Сначала пар поступал в цилиндр высокого давления, после выполнения там работы — в цилиндр среднего давления и, наконец, в цилиндр низкого давления. Цилиндры машин имели диаметры 960 мм, 1460 мм. 2240 мм. Высота цилиндров была одинаковой, ход всех поршней — 1100 мм. Отношение объёмов цилиндров: высокого: среднего: низкого давления равнялось как 1 : 2,32 : 5,26; среднего: низкого как 1 : 2,27. Цилиндры паровой машины отлили из чугуна одной отливкой вместе со своими золотниковыми коробками. Золотники приводились в движение посредством кулисы Стефенсона, что позволяло для каждого цилиндра осуществлять независимую регулировку степени расширения пара. Реверсирование осуществлялось вручную и от системы обратного хода. Работа поршней передавалась через штоки поршней с направляющими салазками и на шатуны, непосредственно воздействующие на коленчатый вал, три кривошипа которого были расположены под углом 120°. Управление главными паровыми машинами строилось по принципу кулисного механизма Стефенсона и осуществлялось непосредственно при помощи золотника Трикше. На каждой машине реверсирование по циркуляционной системе производили при помощи отдельной двухцилиндровой паровой машины или вручную. Посредством муфты, установленной на заднем конце коленчатого вала каждой главной паровой машины, приводили в действие одноцилиндровый простого действия осушительный (трюмный) насос, расположенный горизонтально. У каждой главной паровой машины имелось по одному главному конденсатору поверхностного охлаждения с внутренним теплообменником с двумя группами горизонтально расположенных охлаждающих труб, в котором поступающий из цилиндров паровых машин отработанный пар конденсировался в воду, по одному центробежному насосу охлаждающей воды и расположенной отдельно от главной паровой машины двухцилиндровой паровой машины для привода воздушного насоса системы Бланка. Все три главных конденсатора сообщались между собой таким образом, что отработанный (мятый) пар мог поступать в любой из них. При помощи эксцентрика, установленного на заднем конце коленчатого вала каждой главной паровой машины, приводили в действие одноцилиндровый (простого действия), установленный горизонтально, осушительный насос. К корме в отсеке вспомогательных механизмов у переборки на 26-м шп. в трёх отдельных помещениях IV-го основного отсека установили упорные подшипники гребных валов, за которыми начинались туннели гребных валов. В каждом помещении основного МО имелось по одному тепловому ящику с фильтрами, в среднем два опреснителя (системы Папе и Хеннеберга) с двумя насосами, одним конденсатором опреснителя, два рефрижератора и фильтр, а также промывочный насос с паровым приводом. Для нужд при стоянке в гавани в трюме XII-го основного отсека между 75 и 81-м шп. разместили вспомогательный конденсатор, имевший насос с электроприводом. Необходимый для главных и вспомогательных паровых машин пар с рабочим избыточным давлением 16 кгс/кв.см. производили 12 водотрубных паровых котлов (24 топки) морского типа (системы Шульца) с трубками уменьшенного диаметра. Общая площадь нагревательной поверхности составляла 5040-5076 кв.м., по сравнению с, соответственно. 17,5 кгс/кв.см., 18 котлами типа Бобкок и Уилкокс и 5125 кв.м. КО линкора "Dreadnought". Изготовлял котлы всё тот же Имперский завод в Вильгельмсхафене. Каждый котел имел по две топки и состоял из одной верхней секции и трёх нижних, соединенных 1404 тонкими паропроводными трубками. Нижние секции котла в задней части также соединялись друг с другом. Котлы разместили рядом по двое (продольными осями вдоль ДП, повёрнутые топками друг к другу) в трёх полностью отделённых друг от друга водонепроницаемыми поперечными переборками КО. Каждое КО условно разделили по ДП пополам на две отдельные кочегарки, но продольной переборки между ними не было. Располагаясь между противоторпедными переборками, КО полностью занимали: заднее - VIII-й основной отсек, среднее IX-й, и переднее Х1-й (все одинаковой длины по 9,6 м). Общая длина трёх КО составляла 28,8 м или 19,8 % длины корпуса корабля по КВЛ, по сравнению с, соответственно, 44,7 м или 28,2% КО линкора "Dreadnought". Таким образом, общая длина МО и КО линкоров типа "Nassau" составляла 46,8 м или 32.2% длины корпуса по КВЛ, против 66,6 м и 42% у линкора "Dreadnought". Котлы были рассчитаны на применение как естественной, так и искусственной тяги (наддува). Для этого на промежуточной палубе рядом с шахтами подачи воздуха, ведущими к каждому котлу, установили 12 центробежных воздуходувок, для каждого КО по четыре (два по ЛБ и два по ПрБ). Подачу требуемого количества воздуха в каждое КО обеспечивали по четыре центробежные воздуходувки, установленные на промежуточной палубе рядом с шахтами подачи воздуха и приводимые в действие компаунд-машинами (двухцилиндровыми машинами двухкратного расширения). Они засасывали воздух на уровне верхней палубы и загоняли его в герметично закрытые помещения КО. В каждом КО установили по одному главному и резервному насосу питательной воды, паровому трюмному насосу, подогревателю питательной воды, фильтру питательной воды и мусорному эжектору. Восемь котлов заднего и среднего КО имели выход дымовых газов на заднюю, а четыре переднего КО — переднюю, но в плане меньшего размера дымовую трубу. Дымоуловители заднего и среднего КО направляли дымовые газы в заднюю дымовую трубу, переднего КО — в переднюю. Обе дымовые трубы имели одинаковую высоту 19 м над КВЛ и в плане приблизительно эллипсисе поперечное сечение. В каждое КО имелся доступ с промежуточной палубы по двум трапам, закрываемым водонепроницаемыми крышками; трап по ПрБ был полностью выгорожен переборками. Котлы каждой кочегарки подавали пар по своему паропроводу. Причём все шесть паропроводов, проходящие по три с каждой стороны центрального коридора, подключались к общему бронзовому переходнику, установленному на 46-м шп. В свою очередь, этот переходник отдельным паропроводом соединялся с каждой паровой машиной. Паропроводы оборудовали запорными клапанами и клинкетами. Конкретные данные о самих винтах противоречивы. Согласно Brayer, на кораблях установили три трёхлопастных винта, согласно Грёнеру, три четырёхлопастных винта регулируемого шага диаметром 5 м, отлитые из бронзы. Правый винт имел правостороннее вращение, средний и левый левостороннее. Замеры по расходу топлива, проведенные во время приемных испытаний, показали следующие результаты для скорости хода 19,5 уз. и расчетную дальность плавания экономической скоростью. Для "Nassau" 0,801 кг/л.с. в час, 8100 миль 10-уз. ходом, для "Posen" 0,765 кг/л.с. в час, 9400 миль 10-уз. ходом, для "Rheinland" 0,765 кг/л.с. в час, 8380 миль 10-уз. ходом, для "Westfalen" 0,797 кг/л.с. в час, 8380 миль 10-уз. ходом. Позже, во время войны, корабли были частично переоборудованы на нефть, для чего оборудовали цистерны общей емкостью 160 т. Наибольший запас принимаемого топлива позволял кораблям пройти 9400 миль 10-уз. ходом, 8300 миль 12-уз., 4700 миль 16-уз. и 2800 миль 19-уз. ходом. Энергетическая установка при общем весе 1510 т имела удельный вес 69 кг/л.с. Это было несколько меньше (2050 т и 89 кг/л.с.), чем у линкора "Dreadnought", но уже значительно меньше (1430 т и 110 кг/л.с.), чем у додредноутов типа Kaiser. На линкорах типа "Nassau" в кочегарках имелось шесть расходных угольных ям, примыкающих с бортов непосредственно к противоторпедным переборкам, 20 защитных угольных ям (под броневой палубой), шесть верхних угольных ям и четыре резервных угольных ямы (на броневой палубе). Под броневой палубой на длине всех КО с 46-го до 75-го шп., за исключением переднего КО по ПрБ, где яма проходила только до 73-го шп., по обоим бортам расположили изнутри примыкающие к противоторпедным переборкам расходные угольные ямы, свои для каждой кочегарки. Доступ из кочегарки в ямы осуществлялся через двери с клинкетной задвижкой, оборудованными опускающим устройством, которое можно было привести в действие из кочегарки или с промежуточной палубы. Вдоль всех КО, за противоторпедной переборкой, от 21 -го до 86-го шп. и по высоте от внутреннего дна до броневой палубы оборудовали защитные угольные ямы. Девять поперечных переборок по ПрБ и Л Б делили защитные угольные бункера на 10 мелких водонепроницаемых отсеков. Транспортировку угля осуществляли через водонепроницаемые двери в переборках и водонепроницаемые клинкетные задвижные двери в противоторпедной переборке в нишах расходных ям. Клинкетные задвижные двери были оборудованы опускающим устройством с противовесом и открывались из кочегарок. Доступ в отсеки защитных угольных ям был возможен через водонепроницаемые двери. Из-за опасности самовозгорания угля часть защитных ям, расположенных рядом с КО, оборудовали системой (принудительного) затопления. Верхние угольные ямы разместили по ПрБ и ЛБ на скосах и горизонтальных участках броневой палубы шириной два метра, расположенных по длине от 46-го до 62-го шп. и от 67-го до 75-го шп. и по высоте от броневой до батарейной палубы. Проходы и водонепроницаемые двери давали возможность перевозить уголь по длине всех КО. В верхних угольных ямах установили специальные отсечные переборки, выходящие настолько высоко наверх, что при крене корабля в 10° забортная вода не попадала в ямы. В качестве резервных угольных ям использовали и скосы на броневой палубе по высоте до батарейной палубы. В эти помещения, используемые также как кубрики для матросов и боевые перевязочные пункты, уголь помещался только в мешках.
Для погрузки угля использовали шлюпбалки и краны для спуска-подъёма катеров и шлюпок и на каждом борту установили по семь лебёдок с электроприводом, из которых две приводили в действие переносные угольные транспортёры. Для подвески этих транспортёров на каждом борту протягивали между мачтами штормовой леер (шкаторину). Запас топлива на корабле по проекту равнялся 950/2700 т угля. Фактический запас угля на каждом корабле был различным, и значительно отличался от проектного. Цистерны котельной питательной воды находились в двойном дне. При 75% заполнении цистерн их объём составлял 82,73 куб.м. На кораблях в цилиндрическом резервуаре, установленном в герметично выгороженном помещении на промежуточной палубе по Л Б между 75 и 79-м шп., разместили спирт для двигателей катеров в количестве 7000 л. Подачу спирта на катера осуществляли под давлением с помощью углекислоты. Кроме того, в цистерны принимали 4300 кг машинного масла, 1500 кг масла для смазки цилиндров паровых машин. Электроэнергетическая установка напряжением в сети 225 В имела общую мощность 1280 кВт. Она включала восемь турбогенераторов, размещенных в четырех помещениях ниже броневой палубы: два впереди носового КО побортно и два позади МО, также побортно, и 232 электродвигателя. На случай аварии и неисправностей подачи электропитания для электрического освещения от динамомашин, а также для корабельной телефонной сети использовали четыре небольших аккумуляторных батареи напряжением 12 В. Две свинцовые аккумуляторные батареи, каждая из шести элементов, разместили на нижней палубной платформе в помещении рулевых машин между 12 и 13-м шп. по ДП и по Л Б. Ещё две аккумуляторные батареи фирмы Эдисон, каждая из десяти элементов, установили в трюме в помещении аварийного осушительного насоса у переборки на 75-м шп. Во время проектирования кораблей этого типа турбинные агрегаты не отличались большой компактностью, и их габаритные размеры не давали большого преимущества перед поршневыми машинами. Эта весьма важная для немцев причина дополнялась высоким, по их мнению, расходом топлива турбинных установок на экономических режимах, а также сравнительно плохой маневренностью кораблей с турбинными установками того времени, что для линейных кораблей было весьма опасно. Так же, как к габаритам механизмов немцы относились и к их весовым характеристикам, которые в расчет не принимались, так как, по мнению немецких инженеров, в период проектирования линкоров разница не была столь существенна, чтобы отступаться от преимуществ поршневых машин. К примеру, удельный вес паровых машин для линкора "Nassau" составлял около 69 кг/л.с., а у турбинной установки "Dreadnought" 89 кг/л.с. Однако, уже вскоре появилось различие в весе — удельный вес турбинной установки линейного крейсера Von Der Tann снизился до 67 кг/л.с. в пересчете на проектную расчетную мощность.
Остойчивость и мореходность По сравнению со своими предшественниками, в главных размерениях "Nassau" показал не только абсолютное, но и относительное увеличение ширины. Отношение L/B составило 5,41, против 5,66 у Deutschland. Мидель корпуса имел ярко выраженную прямоугольную форму, что должно было обеспечивать существенное снижение бортовой качки. Конструктор этих кораблей, в то время главный строитель германского имперского флота тайный советник Бюркнер в своих ответах по поводу большой ширины корабля, неоднократно ссылался на то, что начальная остойчивость при проектном водоизмещении имела метацентрическую высоту 2,33 м, против 0,95 м у Deutschland. В то же время момент инерции массы наиболее удаленных от средней линии корабля, высокорасположенных частей (бортовые башни и броневой пояс) значительно увеличился, поэтому надо было считаться с сильной бортовой качкой. Эти опасения судостроителей оказались не напрасными. Моряки, возможно, не ожидали, что такой широкий корабль будет так сильно крениться. Тем большей была неожиданность во время испытаний при плохой погоде. Сведения об этом, конечно не распространялись, но остойчивость и мореходность были улучшены за счет установки больших скуловых килей. Так, показатель остойчивости E/V : 1/3 = 5,5 был большим, и коэффициент полноты водоизмещения составлял 0,585, как и соответствующие значения у Deutschland 5,35 и 0,61. Корабли обладали посредственной мореходностью, очень легко были подвержены бортовой качке, но при этом устойчиво выдерживали курс с креном в наветренную сторону, обладали хорошей маневренностью и малым радиусом циркуляции. Потеря скорости хода при движении против волнения была незначительной, при отклонении руля на 70% угла поворота (35°) потери скорости хода только из-за установленных скуловых килей возрастали почти на 0,8 уз. Дифферентующий момент на единицу осадки (1 м) составлял 24000 тм. поперечная метацентрическая высота 2,33 м, продольная 176 м (Nassau 174 м). Остойчивость была максимальная при 33° крена и нулевой при 64° (Nassau при 62°). Согласно некоторым источникам, на линкорах типа "Nassau" два полубалансирных руля без подпятника, площадью 14,9 кв.м. каждый, установили параллельно в струе боковых винтов с осями на 0-м шп. на расстоянии 2.75 м от ДП. что отличало их от кораблей предыдущей постройки (на Deutschland был один полубалансирный руль площадью 22.37 кв.м). Несмотря на большой момент инерции массы корабля, это позволяло достичь хорошей маневренности. Преимущества большой площади рулей дополнялись расположением рулей в струе винтов — такую особенность имели все последующие немецкие линкоры вплоть до "Bismarck" (1934г.). До "Nassau" два параллельных руля применили также на "Dreadnought", расположенными непосредственно позади внутренних винтов (всего корабль имел четыре винта).
Остальные системы
Для парового привода поворота обоих рулей в румпельном отделении в отдельных помещениях под броневой палубой установили две рулевые машинки с автоматическим приспособлением для обратного вращения (возвращения в исходное положение). Обычно поворот руля осуществляли от основной рулевой машинки, расположенной между 1 5 и 16-м шп. по ПрБ, либо резервной по ЛБ. Каждая рулевая машинка обеспечивала поворот обоих рулей при скорости хода 19.25 уз. из положения 35° ЛБ в положение 35° ПрБ за 30 сек. При выходе из строя всей системы управление рулём посредством рулевых машинок каждый руль можно было поворачивать четырьмя рулевыми при помощи закреплённых на одной оси двух штурвальных колёс диаметром 1,9 м (рулевые штурвалы ручного управления), расположенных на палубной платформе во 11-м основном отсеке между 7 и 9-м шп. по ПрБ и ЛБ. Оси штурвальных колёс соединялись цепной передачей с валом рулевого устройства. С помощью ручного управления можно было осуществить поворот руля при скорости хода 8 уз. на 10° в обе стороны. Полубалансирный руль состоял из баллера руля, четырёх рёбер и установленной между ними обшивки пера руля. Баллер и рёбра отлили из мягкой судостроительной стали Сименс-Мартена и горячей ковкой соединили между собой. Перо руля собрали из семи кусков 18-мм листов стали, вставленных между рёбрами и приклёпанных к ним двойным уголком. Корабли укомплектовали тремя носовыми якорями Холла весом по 7000 кг, из них два становых и резервный, и кормовым якорем Холла весом 3500 кг. Все якоря завели в клюзы. Носовой брашпиль (якорный шпиль) использовали для спуска-подъёма трёх носовых якорей и подтягивания троса при швартовке. От паровой машины с помощью переключения можно было приводить во вращение как каждый из трёх носовых шпилей, так и механизм подтягивания троса. Кормовой брашпиль для спуска-подъема кормового якоря и механизм подтягивания троса при швартовке имел паровую машину несколько меньшей мощности, чем носовой. Места установки спасательных катеров из-за бортовых башен были довольно ограничены. Состав спасательных средств кораблей постройки различных верфей несколько различался, но в основном был следующий: на "Nassau" два моторных катера; паровой катер (командирский вельбот): два весельных баркаса; два катера; один ("Posen" и "Rheinland" по два) моторный катер; два яла; ("Rheinland" имел еще и складную шлюпку). Поворотные краны для спуска-подъёма спасательных средств установили по одному между 52 и 53-м шп. по ЛБ и ПрБ на надстроечной палубе сбоку от задней дымовой трубы. По ЛБ кран поднимал катера и баркасы весом до 16 т со скоростью 20 м/мин., по ПрБ до 8,5 т. Шлюпочную лебёдку использовали для спуска-подъёма вельботов и яликов. Схема окраски Принята 15 апреля 1896 г. В то время использовалась только при службе в домашних водах.
Все корабли, традиционно для немецкого флота, отличались шлюпочными кранами. Несколько отличались формой и размерами портов 88-мм АУ в полубаке и носовой надстройке. Первое время "Nassau" и "Westfalen" несли длинные сдвоенные, расходящиеся наподобие рогов, штанги радиоантенн на топах мачт.
Они были сняты в 1911 г. Остальные два сразу имели традиционную конструкцию мачт с брам-стеньгами.
В 1914 г. на всех были оборудованы наблюдательные посты на фок-мачтах. В 1915 были сняты компасные площадки в корме, затем - все не зенитные 88-мм АУ.
Летом 1916 г. на всех были демонтированы противоторпедные сети. ![]() ![]() ![]() ![]() ![]() ![]() ![]() ![]() ![]() ![]() ![]()
Выдачу заказов, закладку киля и постройку четырёх линкоров первой серии сметной стоимостью около 37 000 000 марок в 1907-10 гг. произвели на четырёх различных верфях — одной казённой и трёх частных. Ещё продолжавшаяся в 1906-07 гг. достройка на плаву линкора-додредноута Hannower не помешала имперской (казённой) верфи в Вильгельмсхафене получить 31 мая 1906 г. заказ на постройку головного линкора-дредноута типа Nassau, в период постройки на стапеле имевшего название "Ersatz Bayern", строительный № 30. Для постройки второго корабля 30 октября 1906 г. привлекли судостроительную верфь А.Г."Везер" в Бремене, получившую заказ на постройку линкора-дредноута, в период постройки на стапеле имевшего название "Ersatz Sachsen", строительный № 163, впоследствии Westfalen. 13 ноября 1906 г. судостроительный завод "Фридрих Крупп Германия-верфь" в Киле получил заказ на постройку третьего линкора-дредноута серии, в период постройки на стапеле имевшего название "Ersatz Baden", строительный № 132, впоследствии Posen, хотя только 3 августа 1906 г. завод отправил на ходовые испытания линкор-додредноут Deutschland, а 17 декабря 1906 г. состоялся спуск на воду однотипного Schleswig-Holstein. Ещё продолжавшаяся в 1906-07 гг. достройка на плаву линкора-додредноута Pommern не помешала частной верфи А.Г.Вулкан в Штеттине получить 16 ноября 1906 г. заказ на постройку линкора-дредноута, в период постройки на стапеле имевшего название "Ersatz Württemberg", строительный № 287, впоследствии Rheinland. Закладка кораблей на стапелях этих верфей состоялась почти одновременно (с разницей в один-два месяца), но строительство велось разными темпами, причём длительность обсуждения проекта корабля и его конструкции при решении ряда сложных проблем сильно затягивали сроки постройки двух первых кораблей. Из четырёх кораблей первой серии первым, согласно Браеру, Грёнеру и Гильдебранду, 1 июня 1907 г., через шесть с половиной месяцев после выдачи заказа на постройку на стапеле частной верфи А.Г.Вулкан в Штеттине заложили киль Rheinland, хотя заказ на постройку получили последним. Вторым, через 10 дней и около семи месяцев после выдачи заказа на постройку, согласно Браеру, Грёнеру и Гильдебранду, 11 июня 1907 г. на стапеле судостроительного завода "Фридрих Крупп Германия-верфь" в Киле заложили киль Posen. Третьим, ещё через полтора месяца и 14 месяцев после выдачи заказа на постройку, согласно Браеру, Грёнеру и Гильдебранду, 22 июля 1907 г. на стапеле имперской (казённой) верфи в Вильгельмсхафене заложили киль третьего линкора-дредноута Nassau, хотя заказ на постройку получили первыми. Последним и через девять месяцев после выдачи заказа на постройку, согласно Браеру, Грёнеру и Гильдебранду, 12 августа 1907 г. на стапеле судостроительной верфи А.Г. "Везер" в Бремене заложили киль Westfalen. Тем самым эта верфь впервые начала постройку крупных военных кораблей для кайзеровского флота.
Тем не менее, верфь в Вильгельмсхафене времени даром не теряла. Пока готовился стапель, произвели завоз листового и уголкового металла, создали задел металлических конструкций корпуса, выдали заказы на машины и котлы. И когда 22 июля 1907 г. строительство головного линкора серии на стапеле имперской верфи в Вильгельмсхафене всё же началось, оно проходило настолько быстро, что через семь с половиной месяцев после закладки киля (заложенный третьим) он первым из кораблей этой серии был готов к спуску на воду — раньше, чем остальные корабли. Заложенный третьим (22 июля 1907 г.), головной линкор-дредноут Nassau через семь с половиной месяцев после закладки киля первым из кораблей серии был готов к спуску на воду. Согласно Браеру, Грёнеру и Гильдебранду, 7 марта 1908 г. состоялся торжественный спуск первого германского дредноута. На церемонии спуска линкора на воду в присутствии кайзера Вильгельма II с супругой и супружеской четы Принца Генриха Нидерландского речь произнес обер-президент земли Нассау фон Хенгстенберг, а обряд крещения, разбив бутылку шампанского о форштевень, совершила Великая герцогиня Хильда фон Баден, принцесса Нассау, назвав линкор Nassau, в честь немецкого герцогства, с 1866 г. составлявшего часть прусской провинции Гессен-Нассау. Nassau был первый немецкий линкор, технические характеристики которого, как и в случае "Dreadnought", держались в строгом секрете, и который начали строить в ускоренном темпе. Правда, выделенные средства не позволяли форсировать строительство настолько же быстро, как в Англии, но все же время постройки было значительно сокращено, что для Германии было не совсем обычно. После спуска корабля на воду, в период достройки, слесарь по ошибке снял временную заглушку на трубе диаметром 450 мм, ведущей за борт. По недосмотру рабочих проникшая вода затопила часть трюмов корабля, поскольку во время достройки двери в водонепроницаемых переборках не могут быть задраены. Корабль сел кормой на грунт. За три дня работы удалось закрыть отверстие в трубе, а затем осушить и поднять корабль, и работы на нём возобновили. Прошло ещё около 19 месяцев, прежде чем, согласно Браеру, Грёнеру и Гильдебранду, 1 октября 1909 г. Nassau предварительно ввели в строй и верфь подготовила дредноут к первому выходу в море. Как головной корабль нового типа, линкор сразу же начал проходить длительную программу всесторонних расширенных испытаний. 15 октября состоялся первый выход на ходовые испытания. Но уже первые выходы в штормовую погоду показали, что по разным причинам ожидаемого большого момента инерции при бортовой качке не получилось, и конструкторы зря отказались от установки скуловых килей. Их пришлось устанавливать позднее. Подготовка производства и стапеля продолжалась около 14 месяцев. Стапельный период постройки линкора Nassau на имперской верфи в Вильгельмсхафене составил семь с половиной месяцев (Dreadnought: официально четыре, фактически восемь), достроечный период — неполных 19 (Dreadnought — восемь), общее время постройки округленно равнялось 26 месяцам (Dreadnought: официально 12, фактически 16), по сравнению с соответственно, 10,5 и 25 месяцами (всего 35,5) постройки на той же верфи линкора-додредноута Hannower. Частным верфям, строившим однотипные корабли, потребовалось 27,5 (Westfalen), 35 (Rheinland) и 35,5 месяцев (Posen). После введения в строй проведение испытаний заняло ещё семь месяцев. Согласно Браеру и Грёнеру, при испытаниях на Нойкругской мерной миле паровые машины Nassau развили максимальную мощность на валах 26244 л.с. (удельная мощность 1,39 л.с./т нормального водоизмещения), что при частоте вращения валов 124 об/мин, обеспечило кораблю скорость хода 20,0 уз. (на 0,5 уз. выше контрактной). Расход угля в среднем при скорости хода около 19,5 уз. составил 0.801 кг/л.с. в час, дальность плавания 8100 миль при экономической скорости хода 10 уз. По другим данным, Nassau достиг наибольшей средней скорости хода 20,1 уз. при мощности машин на валах 26215 л.с. Согласно Грёнеру, фактическая стоимость постройки линкора Nassau составила 37399 тыс. марок (18 699500 руб. золотом или 1869950 фунтов стерлингов) или 1981 марку за тонну нормального водоизмещения против, соответственно. 24253 тыс. марок и 1706 марок при постройке на той же верфи линкора-додредноута Hannower, 1672483 фунтов стерлингов (33449660 марок) и 90,8 фунтов стерлингов (1816 марок) стоимость постройки "Dreadnought" без учета стоимости вооружения и 1785683 фунтов стерлингов (35713660 марок) и 98,5 фунтов стерлингов (1971 марок) стоимость постройки "Dreadnought" с учетом стоимости вооружения. Согласно Грёнеру, экипаж линкора Nassau насчитывал 1008 человек, из них 40 строевых офицеров, инженер-механиков, чиновников, врачей, гардемарин и кондукторов. Согласно Гильдебранду, экипаж в продолжение службы корабля насчитывал 967-1008 человек; по другому источнику, экипаж по штату насчитывал 31 офицера, 9 корабельных гардемарин и 932 унтер-офицера и матроса — всего 972 человека. 1 октября 1909 г. на Nassau был поднят вымпел, корабль приняли в казну и он вступил в кампанию, а 15 октября состоялся первый выход на ходовые испытания. 3 мая Nassau закончил все программы испытаний и его окончательно ввели в строй. В составе флота Nassau находился с 1 октября 1909 г. по 5 ноября 1919г. Срок службы составил 10 лет.
Из четырёх кораблей типа Nassau линкор Westfalen проектировался и строился как флагманский корабль командующего эскадрой с учётом размещения личного состава штаба эскадры. Подготовка производства и стапеля продолжалась около 9,5 месяцев. Стапельный период Westfalen составил 10,5 месяцев, достройка на плаву ещё 16,5 месяцев. Всего постройка продолжалась 27 месяцев. После предварительного введения в строй, согласно Браеру, Грёнеру и Гильдебранду, 16 ноября 1909 г., проведение испытаний заняло ещё около шести месяцев. Согласно Браеру и Грёнеру, при испытаниях на Неукругской мерной миле паровые машины Westfalen развили максимальную мощность на валах 26792 л.с., удельная мощность 1,39 л.с./т нормального водоизмещения, что при частоте вращения валов 121 об/мин, обеспечило кораблю скорость хода 20,2 уз. (на 0,7 уз. выше контрактной). Расход угля в среднем при скорости хода около 19,5 уз. составил 0,797 кг/л.с. в час, дальность плавания 8380 миль при экономической скорости хода 10 уз.
Согласно Грёнеру, экипаж Westfalen насчитывал 1008 человек, из них 40 строевых офицеров, инженер-механиков, чиновников, врачей, гардемарин и кондукторов. Становясь флагманским кораблем командующего эскадрой экипаж увеличивался на 79 человек (из них 13 офицеров). Согласно Гильдебранду, в продолжение службы экипаж по штату насчитывал 1008-1087 человек. К середине сентября 1909 г. Westfalen находился в большой степени готовности и с заводской командой на борту готовился к буксировке в Вильгельмсхафен. Однако из-за падения уровня воды в реке Везер при буксировке возникли трудности. Только со второй попытки, уменьшив осадку с помощью установленных с обоих бортов шести понтонов, удалось обеспечить проводку корабля к морю и перевести его в базу флота. Там ещё недостроенный линкор, также с заводской командой, принял участие в Вильгельмсхафене в торжествах по случаю ввода в эксплуатацию входного канала № 3 Кайзер-Вильгельм канала. Предварительное вступление Westfalen в строй состоялось 16 ноября 1909 г. В феврале 1910 года он, не пройдя ещё полной программы испытаний, участвовал в маневрах флота Открытого моря. После проведения полной программы испытаний 3 мая 1910г. линкор окончательно ввели в строй. В этот день на корабле подняли вымпел, его приняли в казну, и он вступил в кампанию. Westfalen находился в составе флота с 16 ноября 1909 г. по 5 ноября 1919 г. Срок службы 10 лет.
Подготовка производства и стапеля продолжалась около 14 месяцев. Стапельный период линкора Rheinland составил 16 месяцев, достройка на плаву 19 месяцев. Всего постройка продолжалась 35 месяцев по сравнению, соответственно, с 21 и 20 месяцами (всего 41) постройки на той же верфи Pommern. После предварительного введения в строй, согласно Браеру, Грёнеру и Гильдебранду, 30 апреля 1910 г., проведение испытаний заняло ещё четыре месяца. Первый выход на ходовые испытания состоялся 27 февраля 1910 г. Согласно одному из источников, наибольшая длина Rheinland составила 145,72 м, по КВЛ 145,65 м; наибольшая ширина 26,93 м; нормальное водоизмещение по КВЛ 18883 т при осадке 8,10 м. Согласно Браеру и Грёнеру, при испытаниях на Неукругской мерной миле машины Rheinland развили максимальную мощность на валах 27498 л.с., (удельная мощность 1,46 л.с./т нормального водоизмещения), что при частоте вращения валов 123 об/мин, обеспечило кораблю скорость хода 20,0 уз. (на 0,5 уз. выше контрактной). Расход угля в среднем при скорости хода около 19,5 уз. составил 0,765 кг/ л.с. в час, дальность плавания 8380 миль при экономической скорости хода 10 уз. Согласно одному из источников, Rheinland достиг наибольшей средней скорости хода 20,1 уз. при мощности машин на валах 27500 л.с.
Согласно Гильдебранду, в продолжение службы корабля экипаж насчитывал 972-1008 человек; по другому источнику, экипаж по штату насчитывал 31 офицера, 9 корабельных гардемарин и 922 унтер-офицера и матроса — всего 962 человека. Когда в сентябре 1909 г. Rheinland, при окончательной готовности на верфи в Штеттине, должен был покинуть её, возникли трудности с переводом корабля к Балтийскому морю, которые уже не раз возникали на верфях при постройке крупных кораблей — река Одер обмелела. Установив с обоих бортов линкора по три кессона, удалось уменьшить осадку и таким образом обеспечить его проводку к морю.
Rheinland был готов к весне 1910 г. 27 февраля 1910 г. начались заводские испытания. С 27 февраля по 4 марта 1910г. корабль с заводской командой на борту проходил сдаточные испытания в бухте Свинемюнде, после чего перешёл в Киль, где 30 апреля на нём подняли вымпел и официально приняли в состав флота. После окончания всей программы испытания 30 августа Rheinland с уменьшенным составом экипажа на борту уже дымил на рейде Вильгельмсхафена. Только после завершения осенних маневров и вывода из состава флота додредноута Zähringen на Rheinland увеличили экипаж до штатного. 21 сентября 1910 г. его окончательно ввели в строй и зачислили вместо додредноута Zähringen в состав 1-й линейной эскадры. Rheinland находился в составе флота с 30 апреля 1910 г. по 5 ноября 1919 г. Срок службы 9 лет.
Подготовка производства и стапеля продолжалась около 9,5 месяцев. Стапельный период Posen составил 18 месяцев, достройка на плаву 17,5. Всего постройка продолжалась 35,5 месяцев по сравнению, соответственно, с 17 и 20,5 месяцами (всего 37,5) постройки на той же верфи додредноута Deutschland. После предварительного введения в строй, согласно Браеру, Грёнеру и Гильдебранду, 31 мая 1910 г., проведение испытании заняло ещё около трёх месяцев. Первый выход на ходовые испытания состоялся 18 июня 1910г. Согласно одному из источников, наибольшая длина Posen составила 146,25 м, по КВЛ 145,65 м; наибольшая ширина 26,94 м; нормальное водоизмещение по КВЛ 18864 т при осадке 8,067 м.
Согласно Грёнеру, фактическая стоимость постройки Posen составила 36920 тыс.марок (18460 тыс.руб.золотом или 1846 тыс.фунтов стерлингов) или 1955 марок за тонну нормального водоизмещения против, соответственно, 24481 тыс.марок и 1856 марку при постройке на той же верфи додредноута Deutschland. Согласно Гильдебранду, в продолжение службы корабля экипаж насчитывал 972 и 1033 человека; по другому источнику, экипаж по штату насчитывал 972 человека, из них 31 офицер, 9 корабельных гардемарин и 932 унтер-офицера и матроса. После выполнения всей программы испытаний в конце апреля 1910 г. и довооружения на казенной верфи в Киле, 31 мая Posen предварительно вступил в строй кайзеровского флота, к 18 июня 1910 г. провел официальные испытания, а 21 сентября 1910 г. его окончательно ввели в строй. Posen находился в составе флота с 31 мая 1910 г. по 5 ноября 1919 г.
Westfalen Rheinland Rheinland Rheinland Posen Posen Posen Rheinland Posen Westfalen Rheinland WestfalenВ ноябре Posen впервые участвовал в осенних маневрах флота Открытого моря 1910 года. Nassau Nassau
Nassau Nassau Nassau Rheinland Nassau
Nassau Nassau Nassau Nassau Westfalen Posen
Westfalen Posen Nassau Nassau Nassau Westfalen Rheinland Rheinland I эскадра![]() Rheinland
Westfalen Rheinland Nassau Posen Westfalen + Nassau Rheinland 1912 1912 1912 1912 Westfalen Westfalen Westfalen Nassau Rheinland Nassau Westfalen Nassau Posen Rheinland
Rheinland Rheinland Posen Westfalen Westfalen Westfalen Posen Posen Nassau Posen Westfalen Posen
Westfalen Posen Westfalen Posen Posen
Nassau
Westfalen Nassau15-16 декабря 1914 года рейд повторили. Как и в первом походе, сам налет был проведен линейными крейсерами 1-й разведгруппы; Корабли типа Nassau, 8 других дредноутов и 8 додредноутов Флота Открытого Моря осуществляли дальнюю поддержку. Фридрих фон Ингеноль, командующий Флотом Открытого Моря, занял позицию в середине Северного Моря, около 130 миль к востоку от Скарборо. Nassau
Nassau10 февраля 1915 г. все 8 кораблей 1-й эскадры вышли из Вильгельмсхафена в Куксхафен, но сильный туман препятствовал движению в течение двух дней. Затем корабли прибыли и Брюнсбюттель и 22 февраля перешли Кильским Каналом в Киль. В Киле 1 марта команды провели учения стрельбой главным и вспомогательным калибром и торпедами. Следующей ночью были проведены ночные учения. 10 марта эскадра снова прошла шлюзы для возвращения в Вильгельмсхафен, но из-за тумана прибыла туда только 15 марта. NassauВ некоторые боевые походы 2-я дивизия выходила в неполном составе. 29-30 марта 1915 г. не выходил находящийся на верфи в ремонте Westfalen. На Rheinland во время выхода в море 21 -22 апреля 1915 г. произошла серьезная авария машин, из-за чего ему пришлось уйти на верфь в ремонт, длившийся почти полтора месяца. Лишь 29-30 мая 1915 г. после ремонта Rheinland вновь принял участие в боевом походе. В походе 17-18 мая 1915 г. не участвовал и находившийся в ремонте Posen. С июня корабли с флотом оставались в порту до 4 августа, когда 1-я эскадра была направлена на Балтику для действий против России. 20 июня 1915 г. контр-адмирала Гедеке назначили командующим 1-й линейной эскадры, и в связи с этим, 29 июня исполнение обязанностей младшего флагмана возложили (по совмещению) на командира дредноута Rheinland капитана 1 ранга Энгеля (с 17 октября 1915 г. контр-адмирал). Через два месяца. 27 августа, его утвердили в этой должности. В июле 1915 г. Nassau перешёл на верфь для перевода части котлов под нефтяное отопление. Вскоре такие же работы произвели и на других линкорах. NassauПосле возвращения в конце августа в Северное море (Posen вернулся 27 августа) линкоры 2-й дивизии 1-и линейной эскадры продолжали действовать в составе флота Открытого моря. Первый выход в море после операции на Балтике они совершили 11-12 сентября (без Posen, Nassau и Oldenburg), второй 23-24 октября (без Helgoland), третий 16 декабря 1915.
Дальнейшие операции эскадры последовали 5-7 марта (без Rheinland), 26 марта (без Rheinland), 21-22 апреля и 24-25 апреля 1916. Westfalen20 февраля контр-адмирала Энгеля назначили главным директором казенной верфи в Вильгельмсхафене. На посту младшего флагмана 1-й линейной эскадры его временно сменил командир Posen капитан-цур-зее Ланге, а 1 марта на его борту свой флаг ещё раз поднял контр-адмирал Энгельгард. Ланге позже временно замещал Энгельгардта с 17 июля до 7 сентября 1916 г. и 1-2 февраля 1917 г.
Торопясь вступить в бой, флот Открытого моря шел поэскадренно растянутой кильватерной колонной. В голове колонны находилась 3-я линейная эскадра в составе восьми линкоров типов König и Kaiser. За ними шла 1-я линейная эскадра во главе с Ostfriesland (вице-адмирал Шмидт) в составе четырех линкоров типа Helgoland (1-я дивизия) и четырех линкоров типа Nassau (2-я дивизия) во главе с Posen (контр-адмирал Энгельгард). Замыкала колонну 2-я эскадра в составе шести додредноутов типа Deutschland.
Около 23 ч 10 мин 4-я торпедная флотилия англичан (12 эсминцев) заметила на юго-западе неизвестные корабли, которые сперва приняли за британские. Они подходили с кормы сходящимся курсом. В 23 ч 30 мин они подошли с правого борта так близко, что эсминец "Tipperary" дал опознавательный сигнал. В ответ на кораблях зажглись прожектора, и британские эсминцы подверглись сильному артиллерийскому обстрелу. В самом начале боя "Tipperary" получил попадания и начал тонуть. Westfalen Nassau
Замедливший ход Nassau вышел из строя колонны и потерял главные силы из виду. Лишь в 2 ч 20 мин он обнаружил корабли 2-й линейной эскадры и пристроился к ним. Во время боя Nassau получил два попадания снарядами калибра 102-152-мм и потерял 11 человек убитыми и 16 ранеными. Ремонт линкора закончили 10 июля. Во время ночных (1 июня) атак британских эсминцев крейсер Elbing, выполняя маневр уклонения, попытался прорезать строй кораблей флота Открытого моря перед Posen. Несмотря на попытку линкора отвернуть вправо, надеясь избежать столкновения, около 0 ч 30 мин Elbing попал под форштевень линкора (четверо погибших). Форштевень Posen протаранил корму крейсера под острым углом, и тот потерял способность управляться. Вскоре в результате полученных повреждений Elbing затонул в точке с координатами 55°49' N/ 05°54' O. Posen тяжелых повреждений не получил.
Около 1 ч 10 мин по левому борту германской колонны снова появились британские эсминцы, которых сразу же обстреляли с линкоров 2-й дивизии. Огнем с Posen один из них был поврежден, потерял ход и остался за кормой, где вскоре его обстреляли с дредноута Oldenburg. Были замечены попадания во второй эсминец, причем по утверждению части экипажа, довольно серьёзные. После этого Posen, уклонившись от двух выпущенных по нему торпед, обстрелял следующий эсминец и, по всей вероятности, потопил его. Бой был жестоко неравен: эсминцы 4-й флотилии "Fortune" и "Ardent" были потоплены почти со всеми экипажами. Но германские линкоры ещё раз вынуждены были отвернуть. Около 1 ч 40 мин британские эсминцы ошибочно приняли германские линейные корабли головы колонны Шеера за британские корабли. При этом "Petard" получил сильные повреждения, а "Turbulent" потоплен головными германскими линкорами. Согласно журналу "Морской сборник" № 6, 1938 г.. в результате таранного удара линкора Westfalen по "Turbulent", последний был разрезан пополам и затонул со всем личным составом. NassauДо этого "Black Prince" потерял из видимости британский флот и шёл далеко позади. Но пламя взрыва было ясно видно со многих кораблей Гранд-Флита. Около полуночи линкор "Malaya" при свете взрыва увидел головной корабль германской колонны и правильно определил, что это линкор типа Westfalen. Но он не передал адмиралу Джеллико этого важного сведения. После отворота германский флот ещё раз лёг в направлении на арьергард британского флота и. вероятно, около 1 ч 30 мин прошёл позади него. PosenПовреждения линейного корабля Nassau в Ютландской битве. (Пузыревский К. П. - Боевые повреждения и гибель кораблей в Ютландском бою.)
В течение дневного боя Nassau получил одно попадание снарядом крупного калибра (какого калибра, не установлено). В его носовой части в 152-мм бронировании над ватерлинией имелась пробоина шириной в 3,5 м. Прежде чем она была заделана, корабль мог идти только 15-узловым ходом. В 23 часа 25 минут, идя курсом на Хорнс Риф, Nassau встретился с английским эскадренным миноносцем "Spitfire" (3-102-мм орудия и 2-533-мм торпедных аппарата), который в упор на дистанции прямого выстрела открыл по Nassau артиллерийский огонь. Один снаряд попал около боевой рубки и разорвавшись, убил 11 человек, вместе с командиром корабля. Другим фугасным 102-мм снарядом было выведено из строя 150-мм орудие, которое было вырвано из палубы вместе с установкой. Третьим снарядом "Spitfire" попал в прожектора кормовой группы, два из которых он вывел из строя. Nassau без посторонней помощи прибыл в базу 1 июня. Всего корабль получил три 102-мм фугасных снаряда и один снаряд крупного калибра. Итоги. Снаряд крупного калибра попал в 152-мм бронирование в носовой части и нанес пробоину шириной до 3,5 м (высота была, вероятно, такого же размера). Снаряды среднего калибра (102-мм фугасные) осколками вывели из строя 11 человек, что составило 1%. Потеря прожекторов составляла 25%. Борьба за живучесть состояла в заделывании надводной носовой пробоины.
WestfalenРемонт продлился до 26 сентября, и после проведения боевой подготовки в Балтийском море 4 октября он вернулся в Северное море в состав флота Открытого моря, так что смог принять участие в боевом походе флота 18-20 октября в район Доггер-банки. 25-26 сентября 1916 1-я эскадра прикрывала операцию II флотилии эсминцев у банки Терсхеллинг. 18-20 октября Шеер провёл ещё одну операцию флота в направлении Доггер-Банки. 21 декабря Nassau коснулся грунта в устье Эльбы, но самостоятельно смог сняться с мели. Тем не менее, кораблю пришлось идти в Гамбург на верфь Reiherstiegwerft в ремонт, продлившийся до 1 февраля 1917 г.
RheinlandВ 1917 г. все линкоры 2-й дивизии в основном привлекались для несения сторожевой и охранной службы в Северном море. В июле-августе на кораблях 1-й эскадры произошло восстание матросов. Возглавила восстание команда линкора Thuringen. Случаи неповиновения экипажа имели место на Posen и Rheinland. В летней кампании 1917 г. по захвату Моонзундских островов 2-я дивизия (Posen и Rheinland) непосредственно не участвовала, но линкоры Westfalen и Rheinland вышли в западную Балтику на подходы к датским проливам для предотвращения вторжения Гранд-Флита на помощь русским. В частности, Westfalen с 23 сентября до 20 октября, а Rheinland с 15 сентября до 20 октября находились на подходах к Апенраде. 17-18 ноября Nassau и Rheinland, выходили в море для поддержки 2-й разведывательной группы в бою с частью Гранд-Флита. Westfalen21 февраля 1918 г. Rheinland и Westfalen включили в состав "Специального" соединения для участия в Финляндской операции. Командующий соединением контр-адмирал Майер поднял свой флаг на Westfalen", тем самым навсегда связав название этого корабля с операцией Кайзеровского флота, политические последствия которой ощущаются ещё и в сегодняшнее время. WestfalenК 21 февраля окончательно сформировали "Специальное" соединение. Первоначально в его состав входили линкоры Westfalen, Rheinland, минный заградитель Nautilus, 3-я группа прорывателей заграждений, 9-я полуфлотилия тральщиков, четыре миноносца, семь вспомогательных судов и несколько транспортов. 24 февраля контр-адмирал Меурер поднял флаг на Westfalen. От штаба флота Открытого моря к его штабу причислили капитан-лейтенанта Киепа, из бывшего штаба командующего разведывательных сил Балтийского моря капитан-лейтенанта Бастиана и от Главного морского штаба капитан-лейтенанта Иессена. Westfalen Westfalen Westfalen Rheinland15 марта контр-адмирал Меурер на прерывателе минных заграждений "Франкен" (Westfalen остался в Данциге) отправился в Эккере, но прерыватель подорвался на мине и затонул, и адмирал продолжил путь на миноносце, прибыв в Эккере 20 марта. 21 марта под руководством фрегаттен-капитана фон Розенберга начались тральные работы, а в последних числах марта состоялась высадка частей "Балтийской" дивизии.
Высадка частей "Балтийской" дивизии в Ханко произошла без каких-либо осложнений. Базирующиеся там британские подлодки (Е-1, Е-8, Е-9, Е-19, С-26, С-27 и С-35) были взорваны своими командами, их плавбаза подожжена. RheinlandНемецкий десантный отряд занял порт и городской район Скатудден. В ходе уличных боев 13-14 апреля погибли пять моряков-десантников (четверо из экипажа Posen) и 12 было ранено. 14 апреля боевые действия в финской столице прекратились. Немецкие корабли, в частности Westfalen. под флагом контр-адмирала Меурера, оставались в Хельсинки до 30 апреля. За это время немцы привели укрепления береговой обороны города в боеготовое состояние и передали её финнам. Фрегаттен-капитан фон Розенберг получил задание заняться обучением финнов минно-тральным работам. Для организации этого в Хельсинки создавали минно-тральное соединение из бывших русских кораблей. 22 апреля в гавани Гельсингфорса при постановке на якорь Posen наткнулся на затонувшее судно и повредил винты, поэтому 30 апреля его вывели из состава соединения, и уже 3 мая он находился на казенной верфи в Киле, где до 5 мая ему поменяли поврежденные лопасти винтов. Более крупная авария произошла с другим дредноутом. Ещё 11 апреля Rheinland покинул рейд Эккере (его заменил крейсер Kolberg), чтобы присоединиться к эскадре в Гельсингфорсе, но предварительно было необходимо сходить в Данциг для погрузки угля. Однако около 7 ч 00 мин того же дня на скорости хода 15 уз. линкор выскочил на камни у о. Логшер (погибли 2 человека). Корабль получил большую пробоину, затопило все котельные отделения. С 18 до 20 апреля Posen под флагом адмирала Хартога тщетно пытался стащить Rheinland с камней. Сделать это не удалось, и в обозримом будущем корабль в боевое состояние привести не представлялось возможным. RheinlandПосле захвата Хельсинки присутствие в Финляндии немецких кораблей больше не требовалось, а так как задачи, поставленные перед флотом, были выполнены, большая часть кораблей вернулась в Германию. Westfalen перешёл в Северное море, и его снова включили в состав 1-й линейной эскадры.
1918 г. не был отмечен активными действиями флота Открытого моря. Крупные боевые корабли привлекались, в основном, для охранных и сторожевых задач. Летом немецкое командование спланировало крупномасштабную десантную операцию на балтийском побережье, получившую кодовое наименование "Schlußstein", однако от проведения ее пришлось отказаться. Тем не менее, некоторые подготовительные мероприятия проводились: в частности, линкор Nassau 8 августа прибыл в Вильгельмсхафен для принятия на борт десанта в составе 250 солдат со снаряжением. Вместе с десантом дредноут перешёл на Балтику, но, так как 22 августа операцию отменили, Nassau покинул Балтийское море. 11 августа 1918 г. Westfalen, Posen, Kaiser и Kaiserin прикрывали рейд немецких миноносцев на подходах к Терсхеллингу. Во время похода на дредноуте Westfalen произошла авария котлов, и корабль снизил скорость хода до 16 уз. Осенью 1918 г. дредноуты 2-й дивизий начали выводить из состава 1-й линейной эскадры.
Westfalen В соответствии с условиями перемирия дредноуты 2-й дивизии не относились к интернируемым (передаваемым странам Антанты в качестве репарации), но после затопления кораблей немецкого флота в Скапа-Флоу дополнительные требования союзников изменили это положение.
1 сентября 1918 г. Westfalen вывели из состава 1-и линейной эскадры и передали Инспекции корабельной артиллерии в Киле в качестве учебно-артиллерийского судна. Линкор находился в Киле, где 18 декабря 1918 г. его исключили из состава флота. 5 ноября 1919 г. Westfalen вычеркнули из списков кораблей германского флота, и предназначили для передачи Великобритании как репарационный корабль "D". Передача Westfalen состоялась 5 августа 1920 г., в 1924 г. его разобрали на металл в Биркенхеде. Rheinland, на котором повреждения так и не были исправлены, 4 октября 1918 г. официально вывели из состава действующего флота. Некоторое время его использовали как плавказарму, но 5 ноября 1919 г. вычеркнули из списков флота и затем передали союзникам как репарационный корабль "F". 28 июня 1920 г. англичане продали корабль на слом в Нидерланды, а 29 июля 1920 г. его отбуксировали в Додрехт и там в течение 1920-1921 гг. разобрали на металл.
9 ноября Posen вместе с другими кораблями 1-й эскадры перешел из Брунсбюттеля в Вильгельмсхафен, где 10 ноября ошвартовался к причалу № 10. Официально корабли ещё не исключили из состава действующего флота, но экипажи на них уже сильно сократили. С 22 ноября Posen ещё использовали как блокшив с вахтенной командой на борту, но 16 декабря его официально вывели из состава действующего флота. 5 ноября 1919 г. Posen вычеркнули из списков немецкого флота и должны были передать флоту Великобритании, как репарационный корабль "G". 13 мая 1920 г. британское адмиралтейство продало линкор для разборки в Нидерланды, куда его вскоре перевели и в 1922 г. разобрали в Додрехте на металл.
|
||||||||||||||||||||||||||||||||||||||||||||||||||||||||||||||||||||||||||||||||||||||||||||||||||||||||||||||||||||||||||||||||||||||||||||||||||||||||||||||||||||||||||||||||||||||||||||||||||||||||||||||||||||||||||||||||||||||||||||||||||||||||||||||||||||||||||||||||||||||||||||||||||||||||||||||||||||||||||||||||||||||||||||||||||||||||||||||||||||||||||||||||||||||||||||||||||||||||||||||||||||||||||||||||||||||||||||||||||||||||||||||||||||||||||||||||||||||||||||||||||||||||||||||||||||||||||||||||||||||||||||||||||||||||||||||||||||||||||||||||||||||||||||||||||||||||||||||||||||||||||||||||||||||||||||||||||||||||||||||||||||||||||||||||||||||||||



















































































































































































